18611 Pinehurst Street Detroit, MI 48221
Explore our fast and easy mortgage options to maximize your home’s value. Younited Mortgage NMLS #1880125
Overview
W PINEHURST 53 AND E 9 FT OF VAC ALLEY ADJ PALMYRA WOODS SUB L45 P85 PLATS, W C R 16/389 40 X 116.50
This building may also appear as:
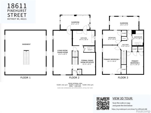
18611 Pinehurst St18611 Pinehurst St Detroit, MI. 48221-1958 motivated seller- all offers considered! Beautifully renovated brick colonial blending original charm with modern finishes. Minutes from bagley, university district, palmer woods, downtown and more, this home offers both convenience and space. the first floor features a large living room/great room, separate formal dining room (or first floor office), updated half bath, and a renovated kitchen with new cabinets, counters, backsplash, and room for eat-in dining. A bright sunroom off both the kitchen and living room overlooks the fenced, picturesque backyard and includes new lighting, exposed brick walls, and side-yard access. upstairs are 3 bedrooms, including two great options for a primary suite—one with a walk-in closet, the other with two closets. The updated full bath includes a new vanity, fixtures, and two linen closets. Enjoy elevated views of the backyard from the second-floor sunroom. additional highlights: Freshly painted, unfinished basement, sidewalks, and a welcoming neighborhood. Move right in and enjoy! Closing cost assistance available from seller.More Information
- MLS Number: 20251049738
- Price: $194,500.00
- Listing Start Date: 10/29/2025
- Current MLS Status: Active
- Status Date: 10/31/2025
- Original Listing Price:
- Year Built: 1950
- Square Footage: 2172
- Price per SqFt: $89.55
- Bedrooms: 3
- Full Bathrooms: 1
- Half Bathrooms: 1
- Total Tax: $2,326
- Year Remodeled: 2025
- Has Basement: Yes
- Down Payment Assistance: Call us for resources
Public Record Information
- Estimated Value: $208,462
- Square Footage: 1798
- Lot Area: 0.11 acres (4,792 sqft)
- Price per SqFt: $115.00
- Year Built: 1950
- Bedrooms: n/a
- Full Bathrooms: 2
- Half Bathrooms: 1
- Taxes (from public record): $2,105
- Approx. Loan Amount: $504,000
- Zoning: R1
- Build Quality: C+
- Floor Types:
- Amenities:
- A/C Types: Yes
- Heating Types: Forced Air Unit
- Exterior Wall Types: Brick
- Architecture Type: Other
- Legal Description: W PINEHURST 53 AND E 9 FT OF VAC ALLEY ADJ PALMYRA WOODS SUB L45 P85 PLATS, W C R 16/389 40 X 116.50
-
Current APN
(Assessor's Parcel Number): 16044164. (16044164) - Previous APN: 16044164. (16044164.)
- General Land Use: Residential
- County Land Use: Residential - Improved (401)
- Owner Occupied: Yes
- Owner City: Detroit, MI
- No. of Buildings: 1
Valuation
Exact Location
Transaction History
| Sale Date | Sale Price | Arm's-Length |
|---|---|---|
| 03/08/2017 | Yes | |
| 11/24/2014 | Yes | |
| 10/31/2014 | Yes | |
| 10/10/2014 | $27,500 | Yes |
Schools Nearby
Homes recently sold within a mile of 18611 Pinehurst, Detroit, MI. 48221
Homes for sale within a mile of 18611 Pinehurst, Detroit, MI. 48221
Find homes for sale around 18611 Pinehurst, Detroit, MI. 48221

IDX provided courtesy of Realcomp II Ltd. via Snabby.com and Realcomp II Ltd. , ©2025 Realcomp II Ltd. Shareholders
The data relating to real estate on this web site comes in part from the Internet Data Exchange (IDX) Program of Realcomp Ltd.
Real estate listings held by firms other than Snabby Real Estate are marked with the Realcomp Internet Data Exchange logo or thumbnail logo
and detailed information about them includes the Listing Broker's Firm Name. The information being provided is for consumers personal,
non-commercial use and may not be used for any purpose other than to identify prospective properties consumers may be interested in purchasing.
Listing Provided by Concierge Management Services LLC
Office Contact Info: (201) 788-9361






























































