11311 Irvington Warren, MI 48093
Explore our fast and easy mortgage options to maximize your home’s value. Younited Mortgage NMLS #1880125
Overview
BEACH LAWN SUB. NO. 3" LOT 131 L.45 P.50
This building may also appear as:
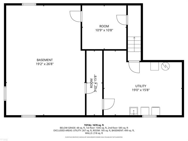
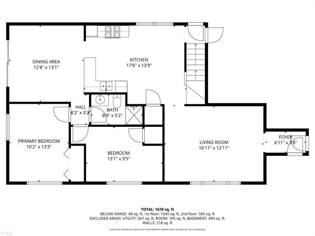
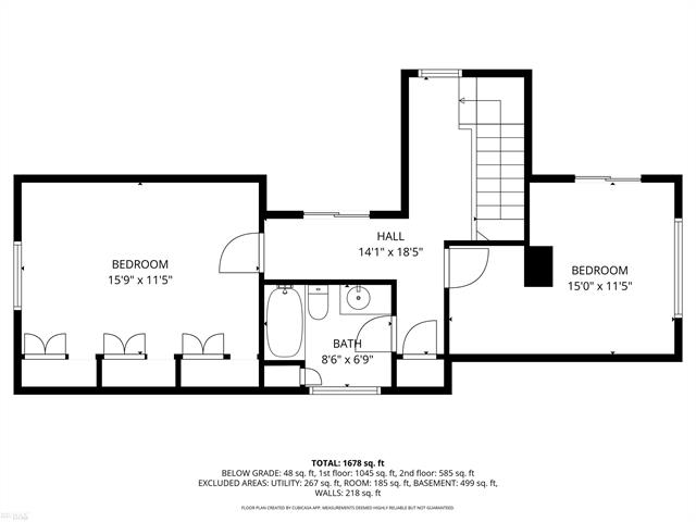
11311 Irvington Dr11311 Irvington Dr Warren, MI. 48093-2674 step into the possibilities of this charming 1,400 sq ft home featuring 4 bedrooms and 2 full baths, thoughtfully laid out with two bedrooms on the main level and two upstairs. The large eat-in kitchen is perfect for gatherings, while the spacious living room and the extra flex room off the kitchen, ideal as a dining room or cozy family room, offer plenty of room to spread out and make the home truly your own. outside, the generous yard with a privacy fence gives you space to relax, garden, entertain, or simply enjoy the outdoors. Several photos have been virtually staged to help you imagine how beautifully this home can shine with your personal touches. With great bones, an inviting layout, and so much potential, this is a fantastic opportunity to create the dream home you've been envisioning. Come take a look and see how easy it is to make this one yours.More Information
- MLS Number: 58050195820
- Price: $269,900.00
- Listing Start Date: 12/10/2025
- Current MLS Status: Active
- Status Date: 12/10/2025
- Year Built: 1962
- Square Footage: 1408
- Price per SqFt: $191.69
- Bedrooms: 4
- Full Bathrooms: 2
- Total Tax: $6,039
- Has Basement: Yes
- Down Payment Assistance: Call us for resources
Public Record Information
- Estimated Value: $226,079
- Square Footage: 1408
- Lot Area: 0.17 acres (7,187 sqft)
- Price per SqFt: $160.00
- Year Built: 1962
- Bedrooms: 4
- Full Bathrooms: 2
- Half Bathrooms: 1
- Taxes (from public record): $4,064
- Approx. Loan Amount: $392,763
- Zoning: R-1-C
- Build Quality: C+
- Floor Types:
- Amenities:
- A/C Types: Yes
- Heating Types: Forced Air Unit
- Exterior Wall Types: Brick
- Parking Types: Attached Garage
- Parking Size: 2
- Legal Description: BEACH LAWN SUB. NO. 3" LOT 131 L.45 P.50
-
Current APN
(Assessor's Parcel Number): 12-13-15-276-020 (121315276020) - Tax ID#: 1315276020
- General Land Use: Residential
- County Land Use: Single Family Residential (401)
- Owner Occupied: Yes
- Owner City: Warren, MI
- Land Features: Level Grade
Valuation
Exact Location
Transaction History
| Sale Date | Sale Price | Arm's-Length |
|---|---|---|
| 02/08/2023 | $217,300 | Yes |
| 01/23/2020 | $185,000 | Yes |
| 06/19/2019 | $120,000 | Yes |
| 04/08/2011 | Yes |
Schools Nearby
Homes recently sold within a mile of 11311 Irvington, Warren, MI. 48093
Homes for sale within a mile of 11311 Irvington, Warren, MI. 48093
Find homes for sale around 11311 Irvington, Warren, MI. 48093

IDX provided courtesy of Realcomp II Ltd. via Snabby.com and Realcomp II Ltd. , ©2025 Realcomp II Ltd. Shareholders
The data relating to real estate on this web site comes in part from the Internet Data Exchange (IDX) Program of Realcomp Ltd.
Real estate listings held by firms other than Snabby Real Estate are marked with the Realcomp Internet Data Exchange logo or thumbnail logo
and detailed information about them includes the Listing Broker's Firm Name. The information being provided is for consumers personal,
non-commercial use and may not be used for any purpose other than to identify prospective properties consumers may be interested in purchasing.
Listing Provided by RE/MAX Eclipse
Office Contact Info: (586) 262-2000


















































