1445 N Seymour Road Flushing, MI 48433
Explore our fast and easy mortgage options to maximize your home’s value. Younited Mortgage NMLS #1880125
Overview
LOT 6 GRA LUE SUBDIVISION
This building may also appear as:
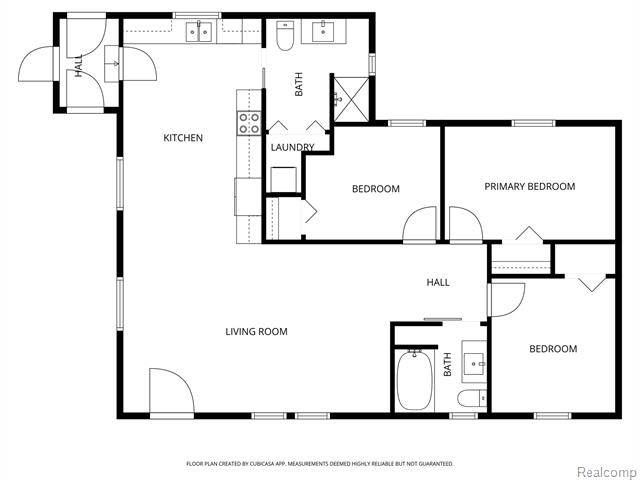
1445 N Seymour Rd1445 N Seymour Rd Flushing, MI. 48433-9448 new from top to bottom, brand new insulation, plumbing, hvac, drywall, electrical. Everything is brand new inside and out, peaceful nearly half acre lot, 2 full bathrooms, all brand new appliances including washer and dryer, elegantly designed throughout, new well pump, granite countertops, tile backsplash and tile finishes in bathrooms, move in ready for its new owners.More Information
- MLS Number: 20251048784
- Price: $239,999.00
- Listing Start Date: 10/25/2025
- Current MLS Status: Active
- Status Date: 10/25/2025
- Year Built: 2025
- Square Footage: 1200
- Price per SqFt: $200.00
- Bedrooms: 3
- Full Bathrooms: 2
- Half Bathrooms: 0
- Total Tax: $532
- Has Basement: No
- Down Payment Assistance: Call us for resources
Public Record Information
- Estimated Value: $166,400
- Square Footage: 1200
- Lot Area: 0.46 acres (19,994 sqft)
- Price per SqFt: $138.00
- Year Built: 1955
- Bedrooms: 3
- Full Bathrooms: 1
- Taxes (from public record): $1,952
- Approx. Loan Amount: $427,274
- Zoning: FS,SING
- Floor Types:
- Amenities:
- Swm Pool Type: NO POOL
- A/C Types: Yes
- Heating Types: Forced Air
- Architecture Type: Ranch
- Parking Types: Type Not Specified
- Parking Size: 2
- Pool: No Pool
- Legal Description: LOT 6 GRA LUE SUBDIVISION
-
Current APN
(Assessor's Parcel Number): 04-10-501-006 (0410501006) - Tax ID#: 0410501006
- General Land Use: Residential
- County Land Use: Single Family Residence (401)
- Owner Occupied: YES
- Owner City: Grand Blanc, MI
Valuation
Exact Location
Transaction History
| Sale Date | Sale Price | Arm's-Length |
|---|---|---|
| 09/25/2024 | $9,000 | No |
| 12/13/2023 | $11,861 | No |
| 01/22/2019 | $110,400 | Yes |
| 09/14/2018 | $44,000 | Yes |
| 01/01/0001 | Yes | |
| 01/01/0001 | Yes | |
| 01/01/0001 | Yes |
Schools Nearby
Homes recently sold within a mile of 1445 Seymour, Flushing, MI. 48433
Homes for sale within a mile of 1445 Seymour, Flushing, MI. 48433
Find homes for sale around 1445 Seymour, Flushing, MI. 48433

IDX provided courtesy of Realcomp II Ltd. via Snabby.com and Realcomp II Ltd. , ©2025 Realcomp II Ltd. Shareholders
The data relating to real estate on this web site comes in part from the Internet Data Exchange (IDX) Program of Realcomp Ltd.
Real estate listings held by firms other than Snabby Real Estate are marked with the Realcomp Internet Data Exchange logo or thumbnail logo
and detailed information about them includes the Listing Broker's Firm Name. The information being provided is for consumers personal,
non-commercial use and may not be used for any purpose other than to identify prospective properties consumers may be interested in purchasing.
Listing Provided by Keller Williams First
Office Contact Info: (810) 515-1503
























































