14984 Fillmore Street West Olive, MI 49460
Explore our fast and easy mortgage options to maximize your home’s value. Younited Mortgage NMLS #1880125
Overview
UNIT 49 VENTURA SHORES AS RECORDED IN OTTAWA COUNTY REGISTER OF DEEDS DOC #2019-0023300 AND AMENDED IN DOC #2022-0020684
This building may also appear as:
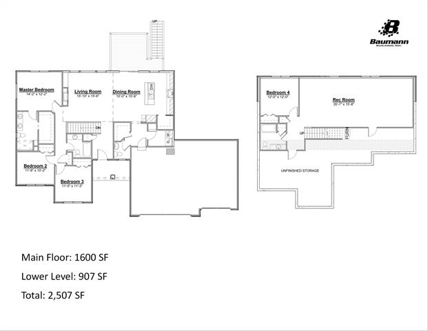
14984 Fillmore St14984 Fillmore St West Olive, MI. 49460-9503 check out baumann building's latest home, the ''big star'' under construction. The home features an open concept kitchen includes stainless steel appliances and a hood fan with pantry and a snack bar. The family room offers a gas fireplace with built-in cabinets with 11' ceilings. Huge windows offer plenty of natural light and pond views. The primary suite with walk-in closet, quartz countertops & Tile shower. A powder bathroom, laundry room and 2 additional bedrooms complete the main level. The walk out lower level to the pond is finished with another bedroom, a full bathroom and a rec room. Ventura shores offers short drives to grand haven, holland and lake michigan beaches. Contact baumann building to learn more today! One or more members are licensed real estate agents in michigan.More Information
- MLS Number: 71024044047
- Price: $575,000.00
- Listing Start Date: 08/21/2024
- Current MLS Status: Off Market
- Status Date: 11/23/2024
- Year Built: 2024
- Square Footage: 2507
- Price per SqFt: $229.36
- Bedrooms: 4
- Full Bathrooms: 3
- Half Bathrooms: 1
- Total Tax: $0
- Has Basement: Yes
- Down Payment Assistance: Call us for resources
Public Record Information
- Estimated Value: n/a
- Square Footage: --
- Lot Area: 0.46 acres (20,168 sqft)
- Price per SqFt: $0.00
- Year Built:
- Bedrooms: n/a
- Full Bathrooms: n/a
- Taxes (from public record): $96
- Approx. Loan Amount: $0
- Floor Types:
- Amenities:
- Legal Description: UNIT 49 VENTURA SHORES AS RECORDED IN OTTAWA COUNTY REGISTER OF DEEDS DOC #2019-0023300 AND AMENDED IN DOC #2022-0020684
-
Current APN
(Assessor's Parcel Number): 70-11-01-132-003 (701101132003) - General Land Use: Residential
- County Land Use: Residential - Vacant (402)
- Owner City: Zeeland, MI
Valuation
Exact Location
Estimated Monthly Expenses
| Total Monthly Cost | |
$ |
|
$ |
|
$ |
|
| Heat | $ |
| Electric Bill | $ |
| Home Owner's Association (HOA) | $ |
Schools Nearby
Homes recently sold within a mile of 14984 Fillmore, West Olive, MI. 49460
Homes for sale within a mile of 14984 Fillmore, West Olive, MI. 49460
Find homes for sale around 14984 Fillmore, West Olive, MI. 49460

IDX provided courtesy of Realcomp II Ltd. via Snabby.com and West Michigan Lakeshore Association of REALTORS® , ©2025 Realcomp II Ltd. Shareholders
The data relating to real estate on this web site comes in part from the Internet Data Exchange (IDX) Program of Realcomp Ltd.
Real estate listings held by firms other than Snabby Real Estate are marked with the Realcomp Internet Data Exchange logo or thumbnail logo
and detailed information about them includes the Listing Broker's Firm Name. The information being provided is for consumers personal,
non-commercial use and may not be used for any purpose other than to identify prospective properties consumers may be interested in purchasing.
Listing Provided by Five Star Real Estate Lakeshore LLC
Office Contact Info: (616) 355-3737
