16465 28 Mile Ray, MI 48096
Explore our fast and easy mortgage options to maximize your home’s value. Younited Mortgage NMLS #1880125
Overview
SEC 19 COM AT SE COR SEC 19;TH N89*03'12"W 428.59 FT ALG SSEC LINE TO POB; TH N89*03'12"W 235.70 FT ALG SD LINE; TH
This building may also appear as:
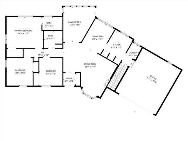
16465 28 Mile Rd16465 28 Mile Rd Ray, MI. 48096-2810 welcome to this inviting 3-bedroom, 2-bath ranch built in 1988 and set on 2.066 peaceful acres at 16465 28 mile road in the romeo community school district. This well-maintained, natural light-filled home offers comfortable one-level living with a spacious layout, first-floor laundry, and an attached 2-car garage. Enjoy a skylight in the office/cozy living area, along with the ability to view nature out every window in the home, creating a warm and relaxing atmosphere throughout. The unfinished basement is ready for your personal touch, offering endless possibilities for added living space, storage, or recreation. There is only one load bearing wall for an even more open concept effect if wanted.the large lot provides a wonderful sense of privacy and plenty of room to enjoy outdoor activities, gardening, or simply the peaceful surroundings. The location places you close to local amenities such as the macomb orchard trail for biking and walking, wolcott mill metropark with its naturalMore Information
- MLS Number: 81025058633
- Price: $379,800.00
- Listing Start Date: 11/19/2025
- Current MLS Status: Active
- Status Date: 11/19/2025
- Year Built: 1988
- Square Footage: 1457
- Price per SqFt: $260.67
- Bedrooms: 3
- Full Bathrooms: 2
- Half Bathrooms: 0
- Total Tax: $2,886
- Has Basement: Yes
- Down Payment Assistance: Call us for resources
Public Record Information
- Estimated Value: $411,691
- Square Footage: 1457
- Lot Area: 2.07 acres (89,995 sqft)
- Price per SqFt: $282.00
- Year Built: 1988
- Bedrooms: n/a
- Full Bathrooms: 2
- Taxes (from public record): $2,428
- Approx. Loan Amount: $0
- Zoning: R-1
- Build Quality: C+
- Floor Types:
- Amenities:
- Heating Types: Hot Water
- Architecture Type: Ranch
- Parking Size: 2
- Legal Description: SEC 19 COM AT SE COR SEC 19;TH N89*03'12"W 428.59 FT ALG SSEC LINE TO POB; TH N89*03'12"W 235.70 FT ALG SD LINE; TH
-
Current APN
(Assessor's Parcel Number): 21-05-19-400-022 (210519400022) - Tax ID#: 0519400022
- General Land Use: Residential
- County Land Use: Single Family Residential (401)
- Owner Occupied: Yes
- Owner City: Ray, MI
Valuation
Exact Location
Transaction History
| Sale Date | Sale Price | Arm's-Length |
|---|---|---|
| 05/02/2012 | Yes |
Schools Nearby
Homes recently sold within a mile of 16465 28 Mile, Ray, MI. 48096
Homes for sale within a mile of 16465 28 Mile, Ray, MI. 48096
Find homes for sale around 16465 28 Mile, Ray, MI. 48096

IDX provided courtesy of Realcomp II Ltd. via Snabby.com and Realcomp II Ltd. , ©2025 Realcomp II Ltd. Shareholders
The data relating to real estate on this web site comes in part from the Internet Data Exchange (IDX) Program of Realcomp Ltd.
Real estate listings held by firms other than Snabby Real Estate are marked with the Realcomp Internet Data Exchange logo or thumbnail logo
and detailed information about them includes the Listing Broker's Firm Name. The information being provided is for consumers personal,
non-commercial use and may not be used for any purpose other than to identify prospective properties consumers may be interested in purchasing.
Listing Provided by @properties Christie's Int'l
Office Contact Info: (248) 850-8632















































