1761 Stanford Rd Berkley, MI 48072
Explore our fast and easy mortgage options to maximize your home’s value. Younited Mortgage NMLS #1880125
Overview
T1N, R11E, SEC 17 PERRY-MORTENSON CO'S ROYAL GARDENS SUB. LOT 46
This building may also appear as:
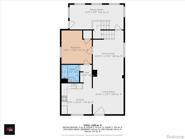
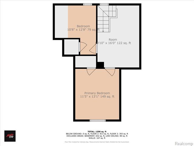
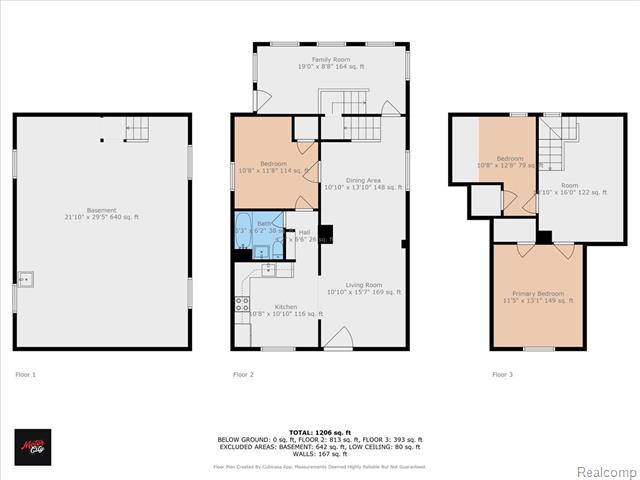
1761 Stanford Rd1761 Stanford Rd Berkley, MI. 48072-3059 back on market! Welcome home to this beautifully renovated 3-bedroom, 1-bath gem in sought-after berkley! This home has been completely transformed from top to bottom, offering modern finishes and a bright, inviting layout. Step inside to find brand-new flooring, fresh paint, and a stunning kitchen with new cabinetry, countertops, and stainless steel appliances. The bathroom has been fully updated with stylish fixtures and tile. Outside, enjoy a private backyard perfect for relaxing or entertaining. With every detail thoughtfully updated and priced to sell, this move-in ready home is the perfect blend of comfort, convenience, and value in an amazing location.More Information
- MLS Number: 20251030462
- Price: $304,900.00
- Listing Start Date: 12/04/2025
- Current MLS Status: Active
- Status Date: 12/04/2025
- Original Listing Price:
- Year Built: 1923
- Square Footage: 1206
- Price per SqFt: $252.82
- Bedrooms: 3
- Full Bathrooms: 1
- Half Bathrooms: 0
- Total Tax: $3,396
- Year Remodeled: 2025
- Has Basement: Yes
- Down Payment Assistance: Call us for resources
Public Record Information
- Estimated Value: $185,760
- Square Footage: 1096
- Lot Area: 0.10 acres (4,312 sqft)
- Price per SqFt: $169.00
- Year Built: 1923
- Bedrooms: 3
- Full Bathrooms: 1
- Taxes (from public record): $3,104
- Approx. Loan Amount: $249,607
- Zoning: RI
- Floor Types:
- Amenities:
- Swm Pool Type: NO POOL
- Heating Types: Forced Air
- Exterior Wall Types: Asbestos
- Architecture Type: Bungalow
- Foundation Types: Raised (Unspecified)
- Roof Material: Asphalt
- Pool: No Pool
- Legal Description: T1N, R11E, SEC 17 PERRY-MORTENSON CO'S ROYAL GARDENS SUB. LOT 46
-
Current APN
(Assessor's Parcel Number): 04-25-17-460-056 (042517460056) - General Land Use: Residential
- County Land Use: Single Family Residence (401)
- Owner Occupied: NO
- Owner City: Birmingham, MI
- No. of Buildings: 1
Valuation
Exact Location
Transaction History
| Sale Date | Sale Price | Arm's-Length |
|---|---|---|
| 03/03/2025 | $160,000 | Yes |
| 02/27/2025 | Yes | |
| 03/13/2024 | Yes | |
| 02/05/2002 | Yes | |
| 01/01/0001 | Yes |
Schools Nearby
Homes recently sold within a mile of 1761 Stanford, Berkley, MI. 48072
Homes for sale within a mile of 1761 Stanford, Berkley, MI. 48072
Find homes for sale around 1761 Stanford, Berkley, MI. 48072

IDX provided courtesy of Realcomp II Ltd. via Snabby.com and Realcomp II Ltd. , ©2025 Realcomp II Ltd. Shareholders
The data relating to real estate on this web site comes in part from the Internet Data Exchange (IDX) Program of Realcomp Ltd.
Real estate listings held by firms other than Snabby Real Estate are marked with the Realcomp Internet Data Exchange logo or thumbnail logo
and detailed information about them includes the Listing Broker's Firm Name. The information being provided is for consumers personal,
non-commercial use and may not be used for any purpose other than to identify prospective properties consumers may be interested in purchasing.
Listing Provided by Oak and Stone Real Estate
Office Contact Info: (248) 266-0584



























