2051 Avondale Dr Keego Harbor, MI 48320
Explore our fast and easy mortgage options to maximize your home’s value. Younited Mortgage NMLS #1880125
Overview
T2N, R9E, SEC 1 SYLVAN LAKE SUB NO 3 LOT 412
This building may also appear as:
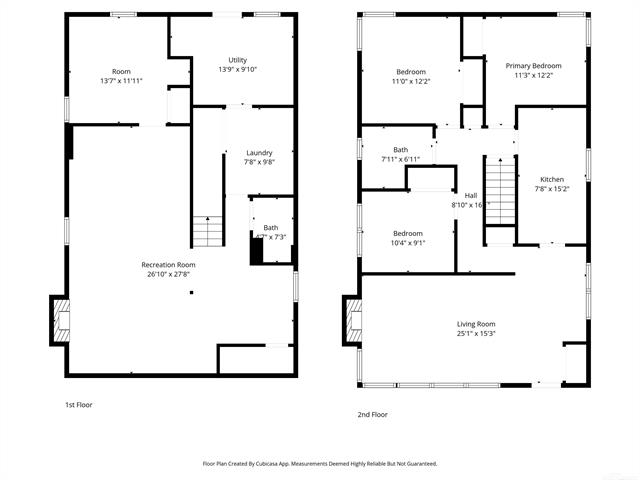
2051 Avondale St2051 Avondale St Sylvan Lake, MI. 48320-1707 exquisite ranch, fully remodeled, move-in ready. Situated on an all-sports lake in one of the area's most desirable neighborhoods! step into luxury with this beautifully remodeled ranch that combines modern elegance with timeless charm. Every corner and every detail have been thoughtfully designed, ensuring no space is wasted and every area feels like home. Enjoy a gourmet kitchen with quartz countertops, brand-new appliances, and custom finishing touches throughout. The main level features high-end wood laminate flooring, while the fully finished basement offers durable waterproof vinyl plank, perfect for entertaining or relaxing. Outside, the home is newly landscaped with a large fenced-in backyard, perfect for outdoor entertaining, pets, and family gatherings. This home delivers the lifestyle you've been waiting for lake living, convenience, and sophistication all in one. this one won't last, schedule your showing today! visit sylvanlake.org for information on city amenities highlights: Completely remodeled, turn-key home every space thoughtfully designed for comfort & Style gourmet kitchen with quartz countertops, cabinets and brand-new top of line appliances brand-new widows and plumbing and electrical fixtures wood laminate main level & Waterproof vinyl plank flooring basement newly landscaped with large fenced-in backyard all-sports lake access premier neighborhood locationMore Information
- MLS Number: 58050195505
- Price: $360,000.00
- Listing Start Date: 12/05/2025
- Current MLS Status: Active
- Status Date: 12/05/2025
- Year Built: 1963
- Square Footage: 2242
- Price per SqFt: $160.57
- Bedrooms: 3
- Full Bathrooms: 1
- Half Bathrooms: 1
- Total Tax: $2,203
- Has Basement: Yes
- Down Payment Assistance: Call us for resources
Public Record Information
- Estimated Value: $276,000
- Square Footage: 1142
- Lot Area: 0.17 acres (7,492 sqft)
- Price per SqFt: $241.00
- Year Built: 1963
- Bedrooms: 3
- Full Bathrooms: 2
- Half Bathrooms: 1
- Taxes (from public record): $2,026
- Approx. Loan Amount: $100,000
- Zoning: RI
- Floor Types:
- Amenities:
- A/C Types: Central
- Heating Types: Forced Air Unit
- Exterior Wall Types: Brick
- Architecture Type: Ranch
- Parking Types: Detached Garage
- Roof Material: Asphalt
- Legal Description: T2N, R9E, SEC 1 SYLVAN LAKE SUB NO 3 LOT 412
-
Current APN
(Assessor's Parcel Number): 1801233002 (1801233002) - General Land Use: Residential
- County Land Use: Residential (364)
- Owner Occupied: YES
- Owner City: Sylvan Lake, MI
Valuation
Exact Location
Transaction History
| Sale Date | Sale Price | Arm's-Length |
|---|---|---|
| 04/24/2000 | $140,000 | Yes |
Schools Nearby
Homes recently sold within a mile of 2051 Avondale, Keego Harbor, MI. 48320
Homes for sale within a mile of 2051 Avondale, Keego Harbor, MI. 48320
Find homes for sale around 2051 Avondale, Keego Harbor, MI. 48320

IDX provided courtesy of Realcomp II Ltd. via Snabby.com and Realcomp II Ltd. , ©2025 Realcomp II Ltd. Shareholders
The data relating to real estate on this web site comes in part from the Internet Data Exchange (IDX) Program of Realcomp Ltd.
Real estate listings held by firms other than Snabby Real Estate are marked with the Realcomp Internet Data Exchange logo or thumbnail logo
and detailed information about them includes the Listing Broker's Firm Name. The information being provided is for consumers personal,
non-commercial use and may not be used for any purpose other than to identify prospective properties consumers may be interested in purchasing.
Listing Provided by Realcom Realty,Inc
Office Contact Info: (586) 296-8471



































