21006 Annapolis Dearborn Heights, MI 48125
Explore our fast and easy mortgage options to maximize your home’s value. Younited Mortgage NMLS #1880125
Overview
34C377B 378 379 LOT 377 EXC THE W 16.7 FT THEREOF ALSO LOTS 378 AND 379 ALSO S 1/2 ADJ VAC ALLEY WATSONIA PARK SUB T2S R10E
This building may also appear as:
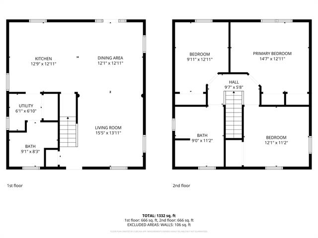
21006 Annapolis St21006 Annapolis St Dearborn Heights, MI. 48125-2802 welcome to 21006 annapolis, a well-maintained newer-built home (2005) featuring an open, spacious floor plan. The updated kitchen offers a large island, ample cabinets, custom granite counters, and flows into a generous dining room with recessed lighting and a doorwall leading to a large deck--perfect for entertaining. Enjoy a bright living room, first-floor laundry, 2 full baths, and large upstairs bedrooms, including a primary suite with walk-in closet. Fresh neutral paint, new carpeting, and refinished hardwood floors make this home move-in ready. The fenced yard, covered front porch, and oversized 2.5-car garage add to its appeal. Conveniently located near schools, shopping, and freeways.More Information
- MLS Number: 81025061287
- Price: $275,000.00
- Listing Start Date: 12/09/2025
- Current MLS Status: Active
- Status Date: 12/09/2025
- Year Built: 2005
- Square Footage: 1456
- Price per SqFt: $188.87
- Bedrooms: 3
- Full Bathrooms: 2
- Half Bathrooms: 0
- Total Tax: $5,943
- Down Payment Assistance: Call us for resources
Public Record Information
- Estimated Value: $218,500
- Square Footage: 1456
- Lot Area: 0.12 acres (5,227 sqft)
- Price per SqFt: $150.00
- Year Built: 2005
- Bedrooms: 3
- Full Bathrooms: 2
- Taxes (from public record): $3,960
- Approx. Loan Amount: $0
- Build Quality: C+
- Floor Types:
- Amenities:
- A/C Types: Yes
- Heating Types: Forced Air Unit
- Exterior Wall Types: Aluminum Or Vinyl Siding
- Architecture Type: Other
- Parking Size: 2
- Legal Description: 34C377B 378 379 LOT 377 EXC THE W 16.7 FT THEREOF ALSO LOTS 378 AND 379 ALSO S 1/2 ADJ VAC ALLEY WATSONIA PARK SUB T2S R10E
-
Current APN
(Assessor's Parcel Number): 33 050 01 0377 300 (33050010377300) - Previous APN: 33 050 01 0377 300 (33 050 01 0377 300)
- General Land Use: Residential
- County Land Use: Residential - Improved (401)
- Owner City: Belmont, NC
- No. of Buildings: 1
Valuation
Exact Location
Transaction History
| Sale Date | Sale Price | Arm's-Length |
|---|---|---|
| 04/08/2024 | Yes |
Schools Nearby
Homes recently sold within a mile of 21006 Annapolis, Dearborn Heights, MI. 48125
Homes for sale within a mile of 21006 Annapolis, Dearborn Heights, MI. 48125
Find homes for sale around 21006 Annapolis, Dearborn Heights, MI. 48125

IDX provided courtesy of Realcomp II Ltd. via Snabby.com and Realcomp II Ltd. , ©2025 Realcomp II Ltd. Shareholders
The data relating to real estate on this web site comes in part from the Internet Data Exchange (IDX) Program of Realcomp Ltd.
Real estate listings held by firms other than Snabby Real Estate are marked with the Realcomp Internet Data Exchange logo or thumbnail logo
and detailed information about them includes the Listing Broker's Firm Name. The information being provided is for consumers personal,
non-commercial use and may not be used for any purpose other than to identify prospective properties consumers may be interested in purchasing.
Listing Provided by RE/MAX Classic
Office Contact Info: (248) 737-6800






















