21737 Roslyn Harper Woods, MI 48225
Explore our fast and easy mortgage options to maximize your home’s value. Younited Mortgage NMLS #1880125
Overview
*576A8,9184A1* LOTS 8 AND 9 - - - DALBY AND CAMPBELL MACK PARK SUB PC 576 L52 P22 WCR; ALSO LOT 1 - - - POST AND BRYS PARK
This building may also appear as:
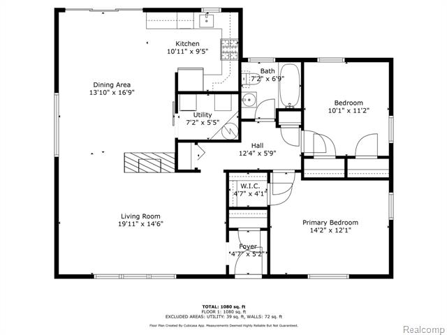
21737 Roslyn Rd21737 Roslyn Rd Harper Woods, MI. 48225-1150 open~contemporary~grosse pointe schools! welcome to 21737 roslyn drive, a charming two-bedroom, that offers the perfect blend of comfort, style, and space. Whether you’re looking for a loft-like retreat or a condo alternative, this property delivers with its modern updates and inviting open feel. step inside to find beautiful wood floors and soaring vaulted ceilings that create an airy, light-filled atmosphere. The interior balances character with convenience, making it move-in ready for its next steward. Hardwood floors thru-out, nice size bedrooms, updated bath, and loads of light! The floor plan is perfect for entertaining with an open flow, 2 sided fireplace, and walk out to the outdoor sanctuary! set on an incredible half-acre lot, the home provides a rare opportunity for outdoor living in the heart of harper woods with sought after grosse pointe schools! The expansive, fenced-in yard with a park like setting is ideal for gardening, entertaining, or simply relaxing in complete privacy. A spacious two-car garage adds functionality and storage. close to shopping, dining, and major freeways. Plus, the property is proudly part of the award-winning grosse pointe school district, making it an excellent choice for families and future investment. don’t miss your chance to own a home that feels both secluded and connected—ready for entertaining, gardening, and everyday living.More Information
- MLS Number: 20251058558
- Price: $199,995.00
- Listing Start Date: 12/11/2025
- Current MLS Status: Active
- Status Date: 12/11/2025
- Year Built: 1948
- Square Footage: 1200
- Price per SqFt: $166.66
- Bedrooms: 2
- Full Bathrooms: 1
- Half Bathrooms: 0
- Total Tax: $3,309
- Year Remodeled: 2015
- Has Basement: No
- Down Payment Assistance: Call us for resources
Public Record Information
- Estimated Value: $178,223
- Square Footage: 1243
- Lot Area: 0.38 acres (16,553 sqft)
- Price per SqFt: $143.00
- Year Built: 1948
- Bedrooms: n/a
- Full Bathrooms: 1
- Taxes (from public record): $2,870
- Approx. Loan Amount: $190,730
- Zoning: R-1C
- Build Quality: C+
- Floor Types:
- Amenities:
- Heating Types: Forced Air Unit
- Parking Size: 1
- Legal Description: *576A8,9184A1* LOTS 8 AND 9 - - - DALBY AND CAMPBELL MACK PARK SUB PC 576 L52 P22 WCR; ALSO LOT 1 - - - POST AND BRYS PARK
-
Current APN
(Assessor's Parcel Number): 42 013 05 0008 300 (42013050008300) - General Land Use: Residential
- County Land Use: Residential - Improved (401)
- Owner Occupied: Yes
- Owner City: Harper Woods, MI
- No. of Buildings: 1
Valuation
Exact Location
Transaction History
| Sale Date | Sale Price | Arm's-Length |
|---|---|---|
| 03/11/2013 | $69,900 | Yes |
| 02/14/2005 | $152,640 | Yes |
Schools Nearby
Homes recently sold within a mile of 21737 Roslyn, Harper Woods, MI. 48225
Homes for sale within a mile of 21737 Roslyn, Harper Woods, MI. 48225
Find homes for sale around 21737 Roslyn, Harper Woods, MI. 48225

IDX provided courtesy of Realcomp II Ltd. via Snabby.com and Realcomp II Ltd. , ©2025 Realcomp II Ltd. Shareholders
The data relating to real estate on this web site comes in part from the Internet Data Exchange (IDX) Program of Realcomp Ltd.
Real estate listings held by firms other than Snabby Real Estate are marked with the Realcomp Internet Data Exchange logo or thumbnail logo
and detailed information about them includes the Listing Broker's Firm Name. The information being provided is for consumers personal,
non-commercial use and may not be used for any purpose other than to identify prospective properties consumers may be interested in purchasing.
Listing Provided by Dwellings Unlimited LLC
Office Contact Info: (248) 994-0400








































