2309 S Elba Road Lapeer, MI 48446
Explore our fast and easy mortgage options to maximize your home’s value. Younited Mortgage NMLS #1880125
Overview
08 45 406 000 00 SEC 29 T7N R9E THE S 100 FT OF N 685 FT OF W 250 FT OF NW 1/4OF SE 1/4. .57 A.
This building may also appear as:
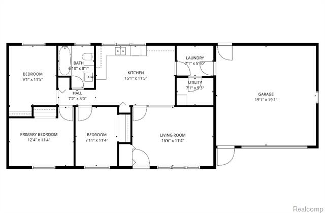
2309 S Elba Rd2309 S Elba Rd Lapeer, MI. 48446-9746 nice size living areas with brand new flooring. New water softener system. Over a half an acre. A large backyard and oversized garage makes this the perfect home to start your new journey in life. Close to i69 and perfectly located between davison and lapeer for all your needs. The price is right and ready for its new owner!More Information
- MLS Number: 20251058680
- Price: $199,900.00
- Listing Start Date: 12/08/2025
- Current MLS Status: Active
- Status Date: 12/08/2025
- Year Built: 1967
- Square Footage: 960
- Price per SqFt: $208.23
- Bedrooms: 3
- Full Bathrooms: 1
- Half Bathrooms: 0
- Total Tax: $1,262
- Has Basement: No
- Down Payment Assistance: Call us for resources
Public Record Information
- Estimated Value: $167,201
- Square Footage: 960
- Lot Area: 0.57 acres (24,829 sqft)
- Price per SqFt: $174.00
- Year Built: 1967
- Bedrooms: 3
- Full Bathrooms: 1
- Taxes (from public record): $795
- Approx. Loan Amount: $204,320
- Zoning: RA
- Floor Types:
- Amenities:
- Heating Types: Forced Air Unit
- Legal Description: 08 45 406 000 00 SEC 29 T7N R9E THE S 100 FT OF N 685 FT OF W 250 FT OF NW 1/4OF SE 1/4. .57 A.
-
Current APN
(Assessor's Parcel Number): 008-029-025-00 (00802902500) - Tax ID#: 00802902500
- General Land Use: Residential
- County Land Use: Single Family Residential (401)
- Owner Occupied: Yes
- Owner City: Lapeer, MI
- No. of Buildings: 1
Valuation
Exact Location
Transaction History
| Sale Date | Sale Price | Arm's-Length |
|---|---|---|
| 08/31/2022 | $156,000 | Yes |
| 12/30/2009 | $48,500 | Yes |
| 02/09/2009 | $27,230 | Yes |
Schools Nearby
Homes recently sold within a mile of 2309 Elba, Lapeer, MI. 48446
Homes for sale within a mile of 2309 Elba, Lapeer, MI. 48446
Find homes for sale around 2309 Elba, Lapeer, MI. 48446

IDX provided courtesy of Realcomp II Ltd. via Snabby.com and Realcomp II Ltd. , ©2025 Realcomp II Ltd. Shareholders
The data relating to real estate on this web site comes in part from the Internet Data Exchange (IDX) Program of Realcomp Ltd.
Real estate listings held by firms other than Snabby Real Estate are marked with the Realcomp Internet Data Exchange logo or thumbnail logo
and detailed information about them includes the Listing Broker's Firm Name. The information being provided is for consumers personal,
non-commercial use and may not be used for any purpose other than to identify prospective properties consumers may be interested in purchasing.
Listing Provided by Solutions Realty Group LLC
Office Contact Info: (810) 302-7001












