2686 Magnolia Garden Drive Howell, MI 48843
Explore our fast and easy mortgage options to maximize your home’s value. Younited Mortgage NMLS #1880125
Overview
10-15-301-031 SECS 15 & 22 T2N R4E BLOSSOM FARMS ESTATES CONDOMINIUM UNIT 31 SPLIT 9-01 FROM 002, 011 & 22-100-006
This building may also appear as:
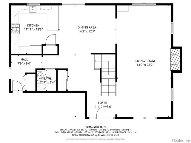
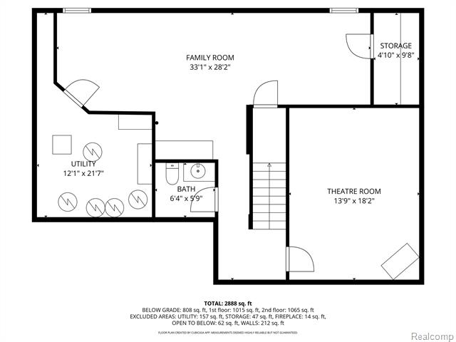
2686 Magnolia Garden Dr2686 Magnolia Garden Dr Howell, MI. 48843-6166 this exceptional home rests on over an acre of serene property. Inside, the home offers an open floorplan centered around an upgraded kitchen (2023) featuring quartz countertops and backsplash, a large breakfast bar, a convenient pantry, and smart home lighting. All this flows seamlessly into the dining room where a doorwall opens to a freshly painted, oversized deck. The flooring on the entry level was installed in 2021. The gas fireplace is the centerpiece of the living room with vaulted ceilings. The second floor features the primary suite that showcases a vaulted ceiling, three closets, and a spacious ensuite bathroom. This is complemented by two additional bedroom suites, each with their own private baths. Convenience abounds with a mud room just off the garage and a dedicated second-floor laundry room. A daylight basement provides an inviting theater room, family room and half bathroom. Looking for a fourth bedroom? Easily add it to the daylight basement for a guest suite. The heated and air-conditioned 3-car garage boasts a dedicated meter for ev charging, while the entire house is on a 150-amp service. Enjoy the outside at your heated pool oasis framed by a beautiful pool deck and blooming hydrangeas. The pool grill and refrigerator will stay for the pool parties! Pool photos taken in september 2025. Water softener was replaced in 2022. Move right in to this gorgeous home!More Information
- MLS Number: 20251059034
- Price: $485,000.00
- Listing Start Date: 12/11/2025
- Current MLS Status: Active
- Status Date: 12/11/2025
- Year Built: 2004
- Square Footage: 3084
- Price per SqFt: $157.26
- Bedrooms: 3
- Full Bathrooms: 3
- Half Bathrooms: 2
- Total Tax: $4,611
- Has Basement: Yes
- Down Payment Assistance: Call us for resources
Public Record Information
- Estimated Value: $470,221
- Square Footage: 2276
- Lot Area: 1.11 acres (48,439 sqft)
- Price per SqFt: $206.00
- Year Built: 2004
- Bedrooms: 3
- Full Bathrooms: 3
- Half Bathrooms: 1
- Taxes (from public record): $3,771
- Approx. Loan Amount: $263,150
- Zoning: RURAL
- Floor Types:
- Amenities:
- Swm Pool Type: HEATED POOL
- A/C Types: Yes
- Heating Types: Forced Air Unit
- Exterior Wall Types: Brick
- Architecture Type: Other
- Parking Size: 2
- Pool: Heated Pool
- Legal Description: 10-15-301-031 SECS 15 & 22 T2N R4E BLOSSOM FARMS ESTATES CONDOMINIUM UNIT 31 SPLIT 9-01 FROM 002, 011 & 22-100-006
-
Current APN
(Assessor's Parcel Number): 10-15-301-031 (1015301031) - Previous APN: 10-15-301-031 (471015301031)
- Tax ID#: 1015301031
- General Land Use: Residential
- County Land Use: Condominium Unit (401)
- Owner Occupied: Yes
- Owner City: Howell, MI
- No. of Buildings: 1
Valuation
Exact Location
Estimated Monthly Expenses
| Total Monthly Cost | |
$ |
|
$ |
|
$ |
|
| Heat | $ |
| Electric Bill | $ |
| Home Owner's Association (HOA) | $ |
Transaction History
| Sale Date | Sale Price | Arm's-Length |
|---|---|---|
| 09/28/2015 | $277,000 | Yes |
| 10/25/2004 | Yes |
Schools Nearby
Homes recently sold within a mile of 2686 Magnolia Garden, Howell, MI. 48843
Homes for sale within a mile of 2686 Magnolia Garden, Howell, MI. 48843
Find homes for sale around 2686 Magnolia Garden, Howell, MI. 48843

IDX provided courtesy of Realcomp II Ltd. via Snabby.com and Realcomp II Ltd. , ©2025 Realcomp II Ltd. Shareholders
The data relating to real estate on this web site comes in part from the Internet Data Exchange (IDX) Program of Realcomp Ltd.
Real estate listings held by firms other than Snabby Real Estate are marked with the Realcomp Internet Data Exchange logo or thumbnail logo
and detailed information about them includes the Listing Broker's Firm Name. The information being provided is for consumers personal,
non-commercial use and may not be used for any purpose other than to identify prospective properties consumers may be interested in purchasing.
Listing Provided by RE/MAX Home Sale Services
Office Contact Info: (734) 459-7646
















































