2961 Chrysler Ave Waterford, MI 48328
Explore our fast and easy mortgage options to maximize your home’s value. Younited Mortgage NMLS #1880125
Overview
T3N, R9E, SEC 24 LA SALLE PARK LOTS 263 & 264
This building may also appear as:
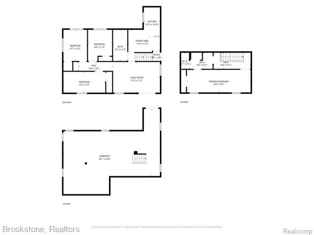
2961 Chrysler Ave2961 Chrysler Ave Waterford, MI. 48328-2629 looking for the best deal in waterford? This is it. Nothing compares to this newly updated 4-bedroom, 2-full-bath home offering nearly 1,400 sq ft of living space. At approximately $145/sq ft, this property is an exceptional opportunity. Updates include fresh interior paint, new neutral carpeting in the living room and bedrooms, and new neutral lvp flooring in the kitchen and baths. The kitchen and bathrooms feature updated cabinetry and a modern backsplash. The private upper-level retreat includes a spacious bedroom, full bath, and walk-in closet. Unfinished basement provides lots of storage space and room for your finishing touches. Enjoy the benefits of a fenced double lot with plenty of room to spread out. Centrally located near mott high school, shopping, and restaurants for everyday convenience. Sold “as-is.” batvai.More Information
- MLS Number: 20251059340
- Price: $199,000.00
- Listing Start Date: 12/10/2025
- Current MLS Status: Active
- Status Date: 12/10/2025
- Year Built: 1922
- Square Footage: 1361
- Price per SqFt: $146.22
- Bedrooms: 4
- Full Bathrooms: 2
- Half Bathrooms: 0
- Total Tax: $2,210
- Year Remodeled: 2025
- Has Basement: Yes
- Down Payment Assistance: Call us for resources
Public Record Information
- Estimated Value: $158,122
- Square Footage: 1361
- Lot Area: 0.25 acres (10,803 sqft)
- Price per SqFt: $116.00
- Year Built: 1922
- Bedrooms: 4
- Full Bathrooms: 1
- Taxes (from public record): $1,851
- Approx. Loan Amount: $7,801,950
- Zoning: SI
- Build Quality: C-
- Floor Types:
- Amenities:
- Heating Types: Forced Air Unit
- Exterior Wall Types: Aluminum Or Vinyl Siding
- Architecture Type: Colonial
- Legal Description: T3N, R9E, SEC 24 LA SALLE PARK LOTS 263 & 264
-
Current APN
(Assessor's Parcel Number): W -13-24-152-035 (W1324152035) - General Land Use: Residential
- County Land Use: Single Family Residential (401)
- Owner City: Southfield, MI
- Land Features: Level Grade
Valuation
Exact Location
Transaction History
| Sale Date | Sale Price | Arm's-Length |
|---|---|---|
| 03/10/2022 | Yes | |
| 04/30/2012 | $25,000 | Yes |
| 04/30/2012 | Yes | |
| 10/18/2011 | $20,000 | No |
| 08/17/2004 | $78,000 | Yes |
| 01/13/2004 | $47,177 | Yes |
Schools Nearby
Homes recently sold within a mile of 2961 Chrysler, Waterford, MI. 48328
Homes for sale within a mile of 2961 Chrysler, Waterford, MI. 48328
Find homes for sale around 2961 Chrysler, Waterford, MI. 48328

IDX provided courtesy of Realcomp II Ltd. via Snabby.com and Realcomp II Ltd. , ©2025 Realcomp II Ltd. Shareholders
The data relating to real estate on this web site comes in part from the Internet Data Exchange (IDX) Program of Realcomp Ltd.
Real estate listings held by firms other than Snabby Real Estate are marked with the Realcomp Internet Data Exchange logo or thumbnail logo
and detailed information about them includes the Listing Broker's Firm Name. The information being provided is for consumers personal,
non-commercial use and may not be used for any purpose other than to identify prospective properties consumers may be interested in purchasing.
Listing Provided by Brookstone, Realtors LLC
Office Contact Info: (248) 963-0501



























