30609 Inkster Road Franklin, MI 48025
Explore our fast and easy mortgage options to maximize your home’s value. Younited Mortgage NMLS #1880125
Overview
T1N, R9E, SEC 12 PART OF NE 1/4 OF NE 1/4 BEG AT PT DIST S 01-37-00 W 674.14 FT FROM NE SEC COR, TH N 88-46-00 W 498.44 FT,
This building may also appear as:
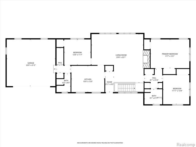
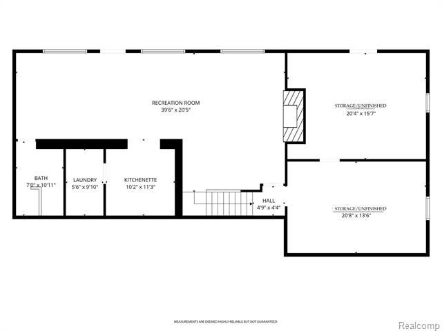
30609 Inkster Rd30609 Inkster Rd Franklin, MI. 48025-2106 beautifully maintained walkout ranch, set on nearly 2 acres of picturesque land. Offering an exceptional blend of comfort, functionality, and outdoor enjoyment, this home is ideal for those seeking space inside and out. The bright, inviting kitchen features maple cabinetry, stainless steel appliances and a spacious peninsula perfect for dining or prep. Large windows fill the adjoining living area with natural light and offer peaceful views of the surrounding landscape. The newly finished walkout lower level enhances the home’s versatility, showcasing a beautifully appointed kitchenette, full bathroom, dedicated laundry room, and structural accommodations for the effortless addition of a 4th bedroom—ideal for extended-stay guests or multi-generational living. Numerous major updates provide peace of mind, including hvac system, humidifier, and ductwork (2017), septic system (2019), new water heater and water filtration system (2024), upgraded gas meter (2024), solid core interior doors (2023), refinished hardwood floors (2023), window treatments (2025), new pool pump (2024), and new sun shade (2024). The home is also prepped for a future whole-house generator. Outdoor living shines with a fabulous in-ground pool and expansive patio—perfect for gathering, entertaining, and enjoying the serene surroundings. With its generous acreage, thoughtful upgrades, and outstanding amenities, this exceptional property invites you to move right in and make it your own.More Information
- MLS Number: 20251058055
- Price: $695,000.00
- Listing Start Date: 12/04/2025
- Current MLS Status: Active
- Status Date: 12/04/2025
- Year Built: 1956
- Square Footage: 3007
- Price per SqFt: $231.13
- Bedrooms: 3
- Full Bathrooms: 3
- Half Bathrooms: 0
- Total Tax: $6,307
- Year Remodeled: 2024
- Has Basement: Yes
- Down Payment Assistance: Call us for resources
Public Record Information
- Estimated Value: $351,000
- Square Footage: 1782
- Lot Area: 1.76 acres (76,666 sqft)
- Price per SqFt: $196.00
- Year Built: 1956
- Bedrooms: 3
- Full Bathrooms: 3
- Half Bathrooms: 1
- Taxes (from public record): $5,700
- Approx. Loan Amount: $337,920
- Zoning: RI
- Floor Types:
- Amenities:
- Swm Pool Type: NO POOL
- Heating Types: Forced Air
- Exterior Wall Types: Aluminum/Vinyl
- Architecture Type: Ranch
- Parking Types: Type Not Specified
- Parking Size: 2
- Pool: No Pool
- Legal Description: T1N, R9E, SEC 12 PART OF NE 1/4 OF NE 1/4 BEG AT PT DIST S 01-37-00 W 674.14 FT FROM NE SEC COR, TH N 88-46-00 W 498.44 FT,
-
Current APN
(Assessor's Parcel Number): 22-23-12-227-009 (222312227009) - General Land Use: Residential
- County Land Use: Single Family Residence (401)
- Owner Occupied: YES
- Owner City: Franklin, MI
- No. of Buildings: 1
Valuation
Exact Location
Transaction History
| Sale Date | Sale Price | Arm's-Length |
|---|---|---|
| 08/15/2014 | $258,000 | Yes |
| 06/17/2003 | Yes | |
| 06/17/2003 | Yes | |
| 01/01/0001 | Yes |
Schools Nearby
Homes recently sold within a mile of 30609 Inkster, Franklin, MI. 48025
Homes for sale within a mile of 30609 Inkster, Franklin, MI. 48025
Find homes for sale around 30609 Inkster, Franklin, MI. 48025

IDX provided courtesy of Realcomp II Ltd. via Snabby.com and Realcomp II Ltd. , ©2025 Realcomp II Ltd. Shareholders
The data relating to real estate on this web site comes in part from the Internet Data Exchange (IDX) Program of Realcomp Ltd.
Real estate listings held by firms other than Snabby Real Estate are marked with the Realcomp Internet Data Exchange logo or thumbnail logo
and detailed information about them includes the Listing Broker's Firm Name. The information being provided is for consumers personal,
non-commercial use and may not be used for any purpose other than to identify prospective properties consumers may be interested in purchasing.
Listing Provided by Oakland Real Estate Group, Inc
Office Contact Info: (248) 800-5005







































