35429 Elmira Livonia, MI 48150
Explore our fast and easy mortgage options to maximize your home’s value. Younited Mortgage NMLS #1880125
Overview
32Q20 YALE HOMES NO 2 T1SR9E L84 P7 AND 8 WCR LOT 20
This building may also appear as:
35429 Elmira St35429 Elmira St Livonia, MI. 48150-2527 welcome to 35429 elmira in the heart of livonia! This beautifully maintained home offers comfortable living with a bright, inviting layout and great natural light throughout. Enjoy a spacious living area, functional kitchen, and well-sized bedrooms perfect for everyday living. The backyard provides the ideal space for relaxing, entertaining, or pets and play. Located in a desirable livonia neighborhood close to parks, schools, shopping, and major expressways. A great opportunity to own a well-kept home in a prime location—don’t miss it!More Information
- MLS Number: 20251057290
- Price: $315,000.00
- Listing Start Date: 12/10/2025
- Current MLS Status: Active
- Status Date: 12/12/2025
- Year Built: 1959
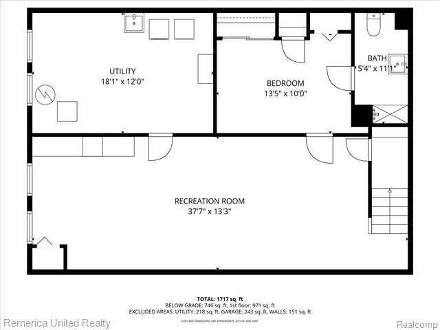
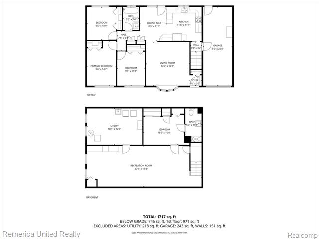
- Square Footage: 1826
- Price per SqFt: $172.51
- Bedrooms: 3
- Full Bathrooms: 2
- Half Bathrooms: 0
- Total Tax: $5,114
- Has Basement: Yes
- Down Payment Assistance: Call us for resources
Public Record Information
- Estimated Value: $341,051
- Square Footage: 1026
- Lot Area: 0.19 acres (8,276 sqft)
- Price per SqFt: $332.00
- Year Built: 1959
- Bedrooms: 3
- Full Bathrooms: 2
- Taxes (from public record): $4,188
- Approx. Loan Amount: $460,130
- Build Quality: C+
- Floor Types:
- Amenities:
- A/C Types: Yes
- Heating Types: Forced Air Unit
- Architecture Type: Ranch
- Parking Size: 1
- Legal Description: 32Q20 YALE HOMES NO 2 T1SR9E L84 P7 AND 8 WCR LOT 20
-
Current APN
(Assessor's Parcel Number): 46 125 04 0020 000 (46125040020000) - Previous APN: 46 125 04 0020 000 (125040020000)
- General Land Use: Residential
- County Land Use: Residential - Improved (401)
- Owner Occupied: Yes
- Owner City: Federalsburg, MD
- No. of Buildings: 1
Valuation
Exact Location
Transaction History
| Sale Date | Sale Price | Arm's-Length |
|---|---|---|
| 09/26/2024 | $315,000 | Yes |
| 09/16/2021 | $217,900 | Yes |
Schools Nearby
Homes recently sold within a mile of 35429 Elmira, Livonia, MI. 48150
Homes for sale within a mile of 35429 Elmira, Livonia, MI. 48150
Find homes for sale around 35429 Elmira, Livonia, MI. 48150

IDX provided courtesy of Realcomp II Ltd. via Snabby.com and Realcomp II Ltd. , ©2025 Realcomp II Ltd. Shareholders
The data relating to real estate on this web site comes in part from the Internet Data Exchange (IDX) Program of Realcomp Ltd.
Real estate listings held by firms other than Snabby Real Estate are marked with the Realcomp Internet Data Exchange logo or thumbnail logo
and detailed information about them includes the Listing Broker's Firm Name. The information being provided is for consumers personal,
non-commercial use and may not be used for any purpose other than to identify prospective properties consumers may be interested in purchasing.
Listing Provided by Remerica United Realty-Brighton
Office Contact Info: (810) 202-1850





































