36950 Willow Rd New Boston, MI 48164
Explore our fast and easy mortgage options to maximize your home’s value. Younited Mortgage NMLS #1880125
Overview
29K THAT PT OF THE W 1/2 OF THE NW 1/4 OF SEC 29 DESC AS BEG AT A PTE ON THE E AND W 1/4 LINE OF SAID SEC DIST S89DEG 25M 30S
This building may also appear as:
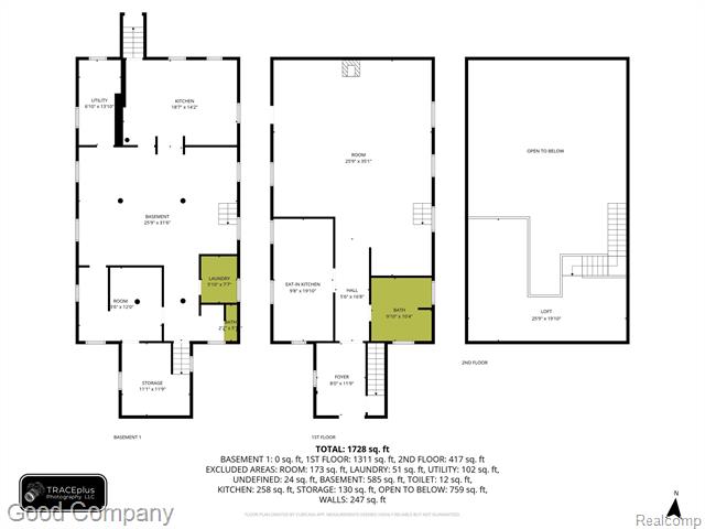
36950 Willow Rd36950 Willow Rd New Boston, MI. 48164-9523 your dream project has arrived! step into a truly one-of-a-kind home in the heart of new boston! Originally built in 1880 as a charming historic church, this unique property has been thoughtfully converted into a single-family residence while preserving the architectural character that makes it unforgettable. Inside, you’ll be greeted by soaring ceilings, stunning arched details, the original bell that still works, and an original chandelier that beautifully anchors the main living space. The open layout highlights the building’s historic charm while offering the comfort and functionality of modern living. The entry level features a kitchen updated about 10 years ago, a large bathroom, a great room and a versatile loft area, previously used as a bedroom—perfect for guests, an office, or cozy retreat. Below, a full basement provides abundant storage and exciting potential: Finish it to create additional bedrooms, a recreation space, or a private studio. If you're looking for a home with soul, history, and endless possibility, this 1880 church-turned-residence is ready to welcome you. Buyer to assume all city repairs, docs to be uploaded once inspection is complete.More Information
- MLS Number: 20251059270
- Price: $250,000.00
- Listing Start Date: 12/11/2025
- Current MLS Status: Active
- Status Date: 12/11/2025
- Year Built: 1880
- Square Footage: 2666
- Price per SqFt: $93.77
- Bedrooms: 1
- Full Bathrooms: 1
- Half Bathrooms: 1
- Total Tax: $2,229
- Year Remodeled: 2005
- Has Basement: Yes
- Down Payment Assistance: Call us for resources
Public Record Information
- Estimated Value: $194,915
- Square Footage: 1333
- Lot Area: 0.25 acres (10,890 sqft)
- Price per SqFt: $146.00
- Year Built: 1920
- Bedrooms: 1
- Full Bathrooms: 2
- Half Bathrooms: 1
- Taxes (from public record): $2,180
- Approx. Loan Amount: $124,580
- Build Quality: C+
- Floor Types:
- Amenities:
- Heating Types: Forced Air Unit
- Architecture Type: Ranch
- Legal Description: 29K THAT PT OF THE W 1/2 OF THE NW 1/4 OF SEC 29 DESC AS BEG AT A PTE ON THE E AND W 1/4 LINE OF SAID SEC DIST S89DEG 25M 30S
-
Current APN
(Assessor's Parcel Number): 75 114 99 0008 000 (75114990008000) - General Land Use: Residential
- County Land Use: Residential - Improved (401)
- Owner Occupied: Yes
- Owner City: New Boston, MI
- No. of Buildings: 1
Valuation
Exact Location
Transaction History
| Sale Date | Sale Price | Arm's-Length |
|---|---|---|
| 11/23/2020 | Yes | |
| 08/19/2011 | Yes | |
| 08/19/2011 | Yes | |
| 01/05/2009 | Yes | |
| 12/27/2007 | $115,000 | Yes |
Schools Nearby
Homes recently sold within a mile of 36950 Willow, New Boston, MI. 48164
Homes for sale within a mile of 36950 Willow, New Boston, MI. 48164
Find homes for sale around 36950 Willow, New Boston, MI. 48164

IDX provided courtesy of Realcomp II Ltd. via Snabby.com and Realcomp II Ltd. , ©2025 Realcomp II Ltd. Shareholders
The data relating to real estate on this web site comes in part from the Internet Data Exchange (IDX) Program of Realcomp Ltd.
Real estate listings held by firms other than Snabby Real Estate are marked with the Realcomp Internet Data Exchange logo or thumbnail logo
and detailed information about them includes the Listing Broker's Firm Name. The information being provided is for consumers personal,
non-commercial use and may not be used for any purpose other than to identify prospective properties consumers may be interested in purchasing.
Listing Provided by Good Company
Office Contact Info: (248) 733-5811

























































