44680 Elizabeth Clinton Township, MI 48036
Explore our fast and easy mortgage options to maximize your home’s value. Younited Mortgage NMLS #1880125
Overview
50-11-02-126-028 D34B1 97S T2N R13E SEC 2 BEG AT A PT LOCATED S 87* 06' 51" W 2154.35 FT AND S 81* 39' 51" W 718.13 FT ALG
This building may also appear as:
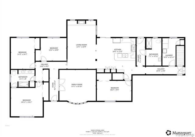
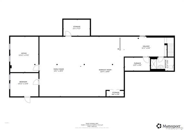
44680 Elizabeth Rd44680 Elizabeth Rd Clinton Township, MI. 48036-1013 welcome home to this spacious 2,436 sq ft ranch offering 4 bedrooms, 3 full baths, and an impressive finished basement perfect for additional living or entertaining space. The home features a large kitchen with plenty of cabinetry and room to gather, and a bright, open living room with a beautiful picture window that fills the space with natural light. New carpet throughout and fresh paint throughout. Step outside to a large, fully fenced yard, ideal for pets or outdoor gatherings. An added bonus is the extra cement pad, perfect for storing a boat, camper, or providing additional parking. This home offers comfort, functionality, and room to spread out, don't miss it!More Information
- MLS Number: 20251059516
- Price: $399,900.00
- Listing Start Date: 12/12/2025
- Current MLS Status: Active
- Status Date: 12/12/2025
- Year Built: 1965
- Square Footage: 4336
- Price per SqFt: $92.23
- Bedrooms: 4
- Full Bathrooms: 3
- Half Bathrooms: 0
- Total Tax: $6,669
- Has Basement: Yes
- Down Payment Assistance: Call us for resources
Public Record Information
- Estimated Value: $361,250
- Square Footage: 2436
- Lot Area: 0.53 acres (23,087 sqft)
- Price per SqFt: $148.00
- Year Built: 1965
- Bedrooms: 4
- Full Bathrooms: 2
- Taxes (from public record): $6,052
- Approx. Loan Amount: $200,000
- Zoning: R-5
- Build Quality: B
- Floor Types:
- Amenities:
- A/C Types: Yes
- Heating Types: Forced Air Unit
- Exterior Wall Types: Brick
- Architecture Type: Ranch
- Parking Size: 2
- Legal Description: 50-11-02-126-028 D34B1 97S T2N R13E SEC 2 BEG AT A PT LOCATED S 87* 06' 51" W 2154.35 FT AND S 81* 39' 51" W 718.13 FT ALG
-
Current APN
(Assessor's Parcel Number): 16-11-02-126-028 (161102126028) - Tax ID#: 1102126028
- General Land Use: Residential
- County Land Use: Single Family Residential (401)
- Owner City: Macomb, MI
- Land Features: Level Grade
Valuation
Exact Location
Transaction History
| Sale Date | Sale Price | Arm's-Length |
|---|---|---|
| 05/09/2012 | Yes | |
| 08/29/2007 | Yes | |
| 09/11/2006 | $260,000 | Yes |
Schools Nearby
Homes recently sold within a mile of 44680 Elizabeth, Clinton Township, MI. 48036
Homes for sale within a mile of 44680 Elizabeth, Clinton Township, MI. 48036
Find homes for sale around 44680 Elizabeth, Clinton Township, MI. 48036

IDX provided courtesy of Realcomp II Ltd. via Snabby.com and Realcomp II Ltd. , ©2025 Realcomp II Ltd. Shareholders
The data relating to real estate on this web site comes in part from the Internet Data Exchange (IDX) Program of Realcomp Ltd.
Real estate listings held by firms other than Snabby Real Estate are marked with the Realcomp Internet Data Exchange logo or thumbnail logo
and detailed information about them includes the Listing Broker's Firm Name. The information being provided is for consumers personal,
non-commercial use and may not be used for any purpose other than to identify prospective properties consumers may be interested in purchasing.
Listing Provided by RE/MAX Eclipse
Office Contact Info: (586) 262-2000



































