56210 11 Mile Rd New Hudson, MI 48165
Explore our fast and easy mortgage options to maximize your home’s value. Younited Mortgage NMLS #1880125
Overview
T1N, R7E, SEC 15 PART OF SE 1/4 OF SW 1/4 BEG AT PT DIST N 89-36-09 W 600 FT FROM S 1/4 COR, TH N 89-36-09 W 150 FT, TH N
This building may also appear as:
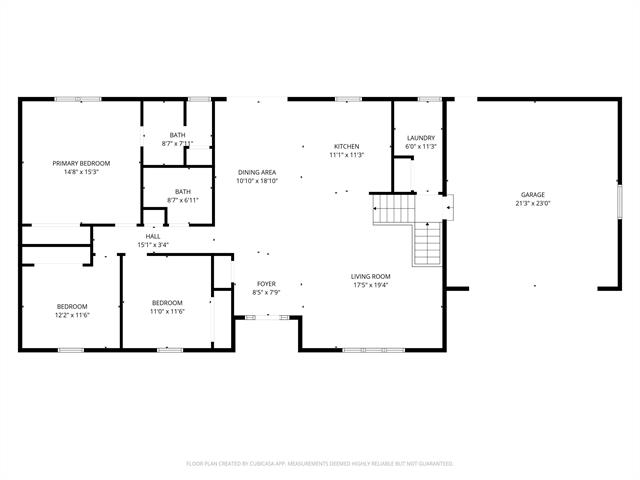
56210 11 Mile Rd56210 11 Mile Rd New Hudson, MI. 48165-9546 a full acre, an open layout, no hoa, and a ranch built for easy everyday living. This 4 bedroom home welcomes you with vaulted ceilings,beautiful hardwood floors, and a connected living, dining, and kitchen space finished with stone counters. A door wall off the dining area leads to a composite deck with peaceful wooded views. The main level includes a comfortable primary suite and an updated main bathroom with newer floors, vanity, fixtures, and paint. The laundry room is placed conveniently between the garage and main living area. The finished daylight basement adds even more usable space with a large family and rec room, a 4th bedroom, and a half bath. Key mechanicals offer confidence for the years ahead with a furnace, ac, & Water heater all under 5 years old. Additional updates include a new front door in 2025, water softener in 2019, and well pressure tank in 2019. All of this sits on over an acre and keeps you close to downtown south lyon, milford, kensington metro park, & I96More Information
- MLS Number: 81025060485
- Price: $480,000.00
- Listing Start Date: 12/05/2025
- Current MLS Status: Active
- Status Date: 12/05/2025
- Year Built: 2002
- Square Footage: 3196
- Price per SqFt: $150.19
- Bedrooms: 4
- Full Bathrooms: 2
- Half Bathrooms: 1
- Total Tax: $5,288
- Has Basement: Yes
- Down Payment Assistance: Call us for resources
Public Record Information
- Estimated Value: $359,750
- Square Footage: 1696
- Lot Area: 1.12 acres (48,787 sqft)
- Price per SqFt: $212.00
- Year Built: 2002
- Bedrooms: 3
- Full Bathrooms: 2
- Taxes (from public record): $4,259
- Approx. Loan Amount: $639,700
- Zoning: SI
- Floor Types:
- Amenities:
- A/C Types: Yes
- Heating Types: Forced Air Unit
- Exterior Wall Types: Aluminum Or Vinyl Siding
- Architecture Type: Ranch
- Parking Size: 2
- Legal Description: T1N, R7E, SEC 15 PART OF SE 1/4 OF SW 1/4 BEG AT PT DIST N 89-36-09 W 600 FT FROM S 1/4 COR, TH N 89-36-09 W 150 FT, TH N
-
Current APN
(Assessor's Parcel Number): K -21-15-300-020 (K2115300020) - General Land Use: Residential
- County Land Use: Single Family Residential (401)
- Owner City: New Hudson, MI
- Land Features: Level Grade
Valuation
Exact Location
Transaction History
| Sale Date | Sale Price | Arm's-Length |
|---|---|---|
| 01/26/2022 | Yes | |
| 10/29/2019 | $300,000 | Yes |
| 07/15/2014 | $251,000 | Yes |
| 05/07/2003 | $70,000 | Yes |
| 05/07/2003 | $217,340 | Yes |
Schools Nearby
Homes recently sold within a mile of 56210 11 Mile, New Hudson, MI. 48165
Homes for sale within a mile of 56210 11 Mile, New Hudson, MI. 48165
Find homes for sale around 56210 11 Mile, New Hudson, MI. 48165

IDX provided courtesy of Realcomp II Ltd. via Snabby.com and Realcomp II Ltd. , ©2025 Realcomp II Ltd. Shareholders
The data relating to real estate on this web site comes in part from the Internet Data Exchange (IDX) Program of Realcomp Ltd.
Real estate listings held by firms other than Snabby Real Estate are marked with the Realcomp Internet Data Exchange logo or thumbnail logo
and detailed information about them includes the Listing Broker's Firm Name. The information being provided is for consumers personal,
non-commercial use and may not be used for any purpose other than to identify prospective properties consumers may be interested in purchasing.
Listing Provided by KW Realty Living
Office Contact Info: (810) 227-5500











































