5821 Dixon Road Vassar, MI 48768
Explore our fast and easy mortgage options to maximize your home’s value. Younited Mortgage NMLS #1880125
Overview
L 578 PG 848 JU-7-201A SEC 7 T12N R8E COM 539.93 FT W OF N 1/4 COR OF SEC, TH W 241 FT, S 257 FT, E 241 FT, N 257 FT TO POB.
This building may also appear as:
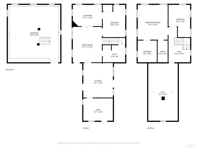
5821 Dixon Rd5821 Dixon Rd Vassar, MI. 48768-9712 open house sunday 12-2. welcome home to this one-of-a-kind 1,920 sq ft georgian-style residence, perfectly situated on 1.5 acres in the reese school district and just one mile from m-81. this home showcases stunning ornate brickwork and millwork throughout, paired with thoughtful updates including a 40 x 60 pole barn with metal roof (2023),metal roof (2020), furnace (2020), septic system (2004), a new electrical panels, water softener, heat pump, generac generator, a new garage metal roof, and a wraparound driveway. inside, this home offers 9"“11 ft ceilings and 4"“5 versatile bedrooms, giving you an open, spacious feel throughout. You'll also enjoy a large, inviting kitchen and ample storage throughout the home. Outdoor living is just as appealing with a covered front porch and a back porch perfect for relaxing or entertaining. The property includes a 20x34 barn with a loft and lean-to and a 12x16 shed/chicken coop, providing plenty of additional space for storage, hobbies, or animals.More Information
- MLS Number: 61050195102
- Price: $325,000.00
- Listing Start Date: 11/25/2025
- Current MLS Status: Active
- Status Date: 11/25/2025
- Year Built: 1900
- Square Footage: 1920
- Price per SqFt: $169.27
- Bedrooms: 4
- Full Bathrooms: 1
- Total Tax: $2,112
- Has Basement: Yes
- Down Payment Assistance: Call us for resources
Public Record Information
- Estimated Value: $202,015
- Square Footage: --
- Lot Area: 1.42 acres (61,855 sqft)
- Price per SqFt: $202,015.00
- Year Built:
- Bedrooms: n/a
- Full Bathrooms: n/a
- Taxes (from public record): $1,729
- Approx. Loan Amount: $144,800
- Floor Types:
- Amenities:
- Swm Pool Type: NO POOL
- Heating Types: None
- Pool: No Pool
- Legal Description: L 578 PG 848 JU-7-201A SEC 7 T12N R8E COM 539.93 FT W OF N 1/4 COR OF SEC, TH W 241 FT, S 257 FT, E 241 FT, N 257 FT TO POB.
-
Current APN
(Assessor's Parcel Number): 014-007-000-0600-00 (014007000060000) - General Land Use: Residential
- County Land Use: Single Family Residence (401)
- Owner Occupied: YES
- Owner City: Vassar, MI
Valuation
Exact Location
Transaction History
| Sale Date | Sale Price | Arm's-Length |
|---|---|---|
| 06/17/2021 | $181,000 | Yes |
Schools Nearby
Homes recently sold within a mile of 5821 Dixon, Vassar, MI. 48768
Homes for sale within a mile of 5821 Dixon, Vassar, MI. 48768
Find homes for sale around 5821 Dixon, Vassar, MI. 48768

IDX provided courtesy of Realcomp II Ltd. via Snabby.com and Realcomp II Ltd. , ©2025 Realcomp II Ltd. Shareholders
The data relating to real estate on this web site comes in part from the Internet Data Exchange (IDX) Program of Realcomp Ltd.
Real estate listings held by firms other than Snabby Real Estate are marked with the Realcomp Internet Data Exchange logo or thumbnail logo
and detailed information about them includes the Listing Broker's Firm Name. The information being provided is for consumers personal,
non-commercial use and may not be used for any purpose other than to identify prospective properties consumers may be interested in purchasing.
Listing Provided by Crown Real Estate Group
Office Contact Info: (810) 644-7790
















































