6311 142Nd Avenue Holland, MI 49423
Explore our fast and easy mortgage options to maximize your home’s value. Younited Mortgage NMLS #1880125
Overview
COM AT S 1/4 PST TH W 450' TH N 665.55' TH E 450' TH S 666.43' TO POB SEC 14 T4N R16W TAX MAP: 6.9 AC (93)
This building may also appear as:
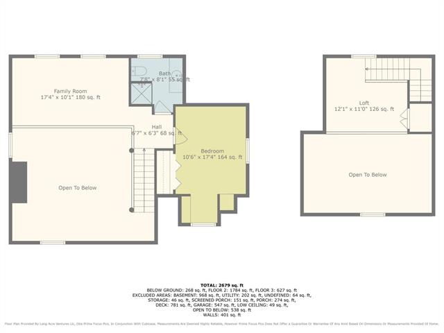
6311 142Nd Ave6311 142Nd Ave Holland, MI. 49423-9709 a new price adjustment! This stunning luxury estate located on 6.8 acres in holland's laketown township. This property feels like a resort with its 1/2 acre pond, manicured lawn, fruit trees, a fenced area with berry bushes, and wildlife-filled woods. The property has been lovingly cared for and updated in recent years inside and outside. Some of the updates are, 2 furnaces and ac's in 22, wood flooring and carpet 24, all appliances 22, added a theatre room in basement 24, finished the basement 24, installed underground sprinkling system 24/25, insulated and added heat to the outbuilding in 22 and so much more (a complete update list is included with listing). The inside of the home is just as amazing as the 6.8 acres with a floor to ceiling stone fireplace,an amazing kitchen, very large primary bedroom suite with walk-in closet, an ensuite plus a private loft/sitting area. It includes two additional main floor bedrooms; One currently used as an office and another full bathroom. Upstairs is a balcony/sitting area overlooking the living room with another full bathroom and 4th bedroom. You must see in person to appreciate, call for your private showing.More Information
- MLS Number: 65025030650
- Price: $999,999.00
- Listing Start Date: 12/01/2025
- Current MLS Status: Active
- Status Date: 12/01/2025
- Original Listing Price:
- Year Built: 1987
- Square Footage: 3220
- Price per SqFt: $310.56
- Bedrooms: 4
- Full Bathrooms: 3
- Half Bathrooms: 0
- Total Tax: $8,998
- Has Basement: Yes
- Down Payment Assistance: Call us for resources
Public Record Information
- Estimated Value: $700,773
- Square Footage: 2204
- Lot Area: 6.87 acres (299,257 sqft)
- Price per SqFt: $317.00
- Year Built: 1987
- Bedrooms: 2
- Full Bathrooms: 3
- Taxes (from public record): $5,414
- Approx. Loan Amount: $0
- Zoning: R1
- Floor Types:
- Amenities:
- Swm Pool Type: NO POOL
- A/C Types: Yes
- Heating Types: Forced Air
- Exterior Wall Types: Wood
- Architecture Type: Ranch
- Foundation Types: Raised (Unspecified)
- Parking Types: Type Not Specified
- Parking Size: 2
- Pool: No Pool
- Legal Description: COM AT S 1/4 PST TH W 450' TH N 665.55' TH E 450' TH S 666.43' TO POB SEC 14 T4N R16W TAX MAP: 6.9 AC (93)
-
Current APN
(Assessor's Parcel Number): 11-014-042-20 (1101404220) - Previous APN: 11-014-042-20 (11-014-042-20)
- General Land Use: Residential
- County Land Use: Single Family Residence (401)
- Owner Occupied: YES
- Owner City: Holland, MI
- No. of Buildings: 1
Valuation
Exact Location
Transaction History
| Sale Date | Sale Price | Arm's-Length |
|---|---|---|
| 04/14/2022 | $859,900 | Yes |
| 12/05/2005 | Yes |
Schools Nearby
Homes recently sold within a mile of 6311 142Nd, Holland, MI. 49423
Homes for sale within a mile of 6311 142Nd, Holland, MI. 49423
Find homes for sale around 6311 142Nd, Holland, MI. 49423

IDX provided courtesy of Realcomp II Ltd. via Snabby.com and Realcomp II Ltd. , ©2025 Realcomp II Ltd. Shareholders
The data relating to real estate on this web site comes in part from the Internet Data Exchange (IDX) Program of Realcomp Ltd.
Real estate listings held by firms other than Snabby Real Estate are marked with the Realcomp Internet Data Exchange logo or thumbnail logo
and detailed information about them includes the Listing Broker's Firm Name. The information being provided is for consumers personal,
non-commercial use and may not be used for any purpose other than to identify prospective properties consumers may be interested in purchasing.
Listing Provided by Berkshire Hathaway HomeServices Michigan Real Esta
Office Contact Info: (616) 514-3000














































































