6520 E Hidden Lake Circle Richland, MI 49083
Explore our fast and easy mortgage options to maximize your home’s value. Younited Mortgage NMLS #1880125
Overview
THE RANCH AT HIDDEN LAKE UNIT 3 SPLIT/COMBINED ON 02/01/2023 FROM 03-29-201-019;
This building may also appear as:
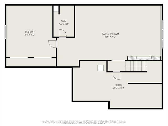
6520 E Hidden Lake Cir6520 E Hidden Lake Cir Richland, MI. 49083-8724 welcome to your dream home in the desirable ranch at hidden lake neighborhood! This stunning residence blends modern luxury with thoughtful design, featuring an open-concept main floor perfect for everyday living and entertaining. The spacious kitchen is a chef's delight, complete with a secondary working kitchen for added convenience. Upstairs, you'll find a serene retreat with all four bedrooms and a versatile loft. Two bedrooms share a jack & Jill bathroom, while a third enjoys its own private en-suite--perfect for guests or a ''princess suite.'' the highlight is the luxurious primary suite, boasting a spa-like bath with a custom-tiled walk-in shower and dual walk-in closets that offer both space and organization. The seller has recently finished the basement to extend your living spaceMore Information
- MLS Number: 66025054163
- Price: $899,000.00
- Listing Start Date: 10/20/2025
- Current MLS Status: Active
- Status Date: 10/21/2025
- Original Listing Price:
- Year Built: 2023
- Square Footage: 4077
- Price per SqFt: $220.51
- Bedrooms: 5
- Full Bathrooms: 3
- Half Bathrooms: 2
- Total Tax: $6,701
- Has Basement: Yes
- Down Payment Assistance: Call us for resources
Public Record Information
- Estimated Value: $833,045
- Square Footage: 3170
- Lot Area: 1.73 acres (75,359 sqft)
- Price per SqFt: $262.00
- Year Built:
- Bedrooms: n/a
- Full Bathrooms: 1
- Taxes (from public record): --
- Approx. Loan Amount: $0
- Zoning: A-1
- Floor Types:
- Amenities:
- A/C Types: Yes
- Heating Types: Forced Air
- Parking Types: Type Not Specified
- Parking Size: 3
- Legal Description: THE RANCH AT HIDDEN LAKE UNIT 3 SPLIT/COMBINED ON 02/01/2023 FROM 03-29-201-019;
-
Current APN
(Assessor's Parcel Number): 03-29-265-003 (0329265003) - General Land Use: Residential
- County Land Use: Single Family Residence (401)
- Owner Occupied: YES
- Owner City: Richland, MI
Valuation
Exact Location
Estimated Monthly Expenses
| Total Monthly Cost | |
$ |
|
$ |
|
$ |
|
| Heat | $ |
| Electric Bill | $ |
| Home Owner's Association (HOA) | $ |
Transaction History
| Sale Date | Sale Price | Arm's-Length |
|---|---|---|
| 10/17/2024 | Yes | |
| 10/17/2024 | Yes |
Schools Nearby
Homes recently sold within a mile of 6520 Hidden Lake, Richland, MI. 49083
Homes for sale within a mile of 6520 Hidden Lake, Richland, MI. 49083
Find homes for sale around 6520 Hidden Lake, Richland, MI. 49083

IDX provided courtesy of Realcomp II Ltd. via Snabby.com and Realcomp II Ltd. , ©2025 Realcomp II Ltd. Shareholders
The data relating to real estate on this web site comes in part from the Internet Data Exchange (IDX) Program of Realcomp Ltd.
Real estate listings held by firms other than Snabby Real Estate are marked with the Realcomp Internet Data Exchange logo or thumbnail logo
and detailed information about them includes the Listing Broker's Firm Name. The information being provided is for consumers personal,
non-commercial use and may not be used for any purpose other than to identify prospective properties consumers may be interested in purchasing.
Listing Provided by Berkshire Hathaway HomeServices MI
Office Contact Info: (269) 629-7653












































