669 N Riverside Saint Clair, MI 48079
Explore our fast and easy mortgage options to maximize your home’s value. Younited Mortgage NMLS #1880125
Overview
APT 4 CLAIRFORE CONDOMINIUM PLAN NO 28 REC LIBER 1101 PAGES 283 TO 305
This building may also appear as:
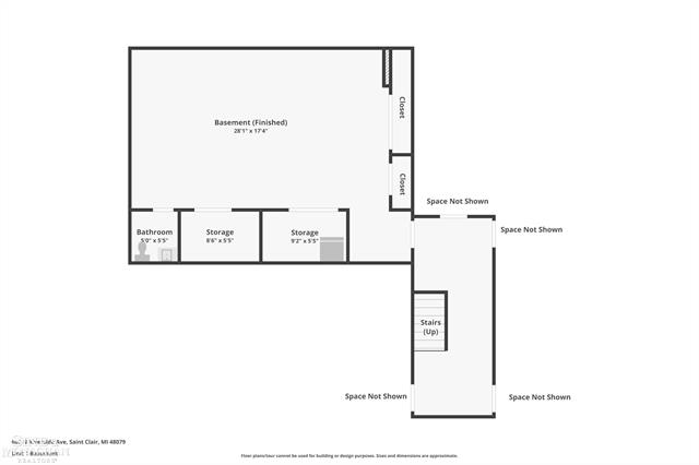
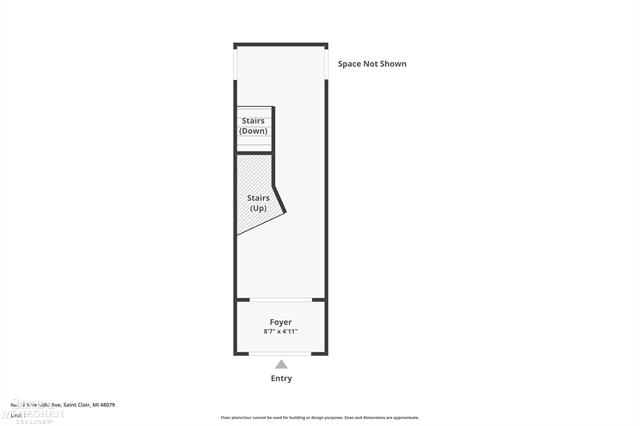
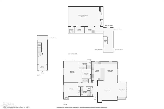
669 N Riverside Ave Apt 4669 N Riverside Ave Apt 4 Saint Clair, MI. 48079-5480669 N Riverside Ave APT 4 Saint Clair, MI. 48079-5480 welcome to this beautifully updated 2-bedroom, 2-bath upper condo offering stunning views of the st. Clair river and an unbeatable location just a few blocks north of downtown. Step inside to a gorgeous fully renovated kitchen featuring modern finishes and ample storage, complemented by new flooring throughout the main level. All appliances are less than 3 years old, all new renewal by anderson windows (within 2 years) making this home truly move-in ready. the spacious layout includes a rare 600 sq. Ft. Finished basement with a convenient half bath-perfect for a rec room, home office, or additional living space. Enjoy the ease of a 2-car detached garage plus well-maintained grounds and a peaceful setting. A chair lift is already installed for anyone who may need assistance with the stairs, adding comfort and accessibility. this condo combines style, comfort, and a prime location. An absolute must-see! Let your buyers fall in love with river views and turnkey living.More Information
- MLS Number: 58050195659
- Price: $329,900.00
- Listing Start Date: 12/05/2025
- Current MLS Status: Active
- Status Date: 12/05/2025
- Year Built: 1979
- Square Footage: 2103
- Price per SqFt: $156.87
- Bedrooms: 2
- Full Bathrooms: 2
- Half Bathrooms: 1
- Total Tax: $3,571
- Has Basement: Yes
- Down Payment Assistance: Call us for resources
Public Record Information
- Estimated Value: $187,000
- Square Footage: --
- Lot Area: acres (-- sqft)
- Price per SqFt: $187,000.00
- Year Built:
- Bedrooms: n/a
- Full Bathrooms: n/a
- Taxes (from public record): $2,135
- Approx. Loan Amount: $0
- Floor Types:
- Amenities:
- Heating Types: None
- Legal Description: APT 4 CLAIRFORE CONDOMINIUM PLAN NO 28 REC LIBER 1101 PAGES 283 TO 305
-
Current APN
(Assessor's Parcel Number): 079550004000 (79550004000) - General Land Use: Residential
- County Land Use: Residential (357)
- Owner Occupied: YES
- Owner City: Saint Clair, MI
Valuation
Exact Location
Estimated Monthly Expenses
| Total Monthly Cost | |
$ |
|
$ |
|
$ |
|
| Heat | $ |
| Electric Bill | $ |
| Home Owner's Association (HOA) | $ |
Transaction History
| Sale Date | Sale Price | Arm's-Length |
|---|---|---|
| 02/11/2015 | $935,000 | Yes |
Schools Nearby
Homes recently sold within a mile of 669 N Riverside, Saint Clair, MI. 48079
Homes for sale within a mile of 669 N Riverside, Saint Clair, MI. 48079
Find homes for sale around 669 N Riverside, Saint Clair, MI. 48079

IDX provided courtesy of Realcomp II Ltd. via Snabby.com and Realcomp II Ltd. , ©2025 Realcomp II Ltd. Shareholders
The data relating to real estate on this web site comes in part from the Internet Data Exchange (IDX) Program of Realcomp Ltd.
Real estate listings held by firms other than Snabby Real Estate are marked with the Realcomp Internet Data Exchange logo or thumbnail logo
and detailed information about them includes the Listing Broker's Firm Name. The information being provided is for consumers personal,
non-commercial use and may not be used for any purpose other than to identify prospective properties consumers may be interested in purchasing.
Listing Provided by Sine & Monaghan Realtors LLC St Clair
Office Contact Info: (810) 329-9001

















































