6814 Dale Court Fennville, MI 49408
Explore our fast and easy mortgage options to maximize your home’s value. Younited Mortgage NMLS #1880125
Overview
W 125' LOT 1 RAVINE ACRES PLAT SEC 32 T3N R16W (96)
This building may also appear as:
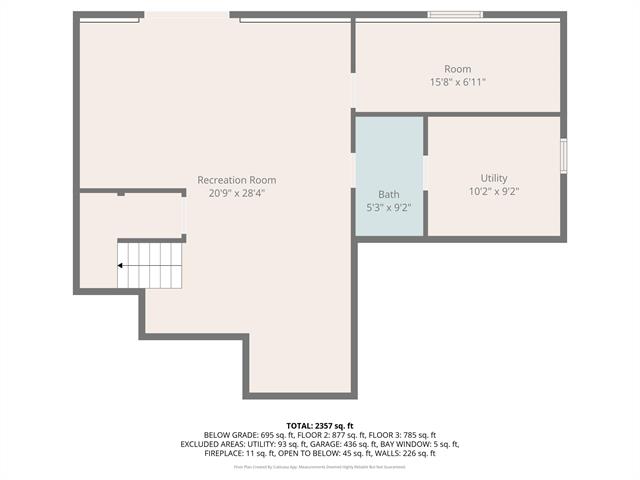
6814 Dale Ct6814 Dale Ct Fennville, MI. 49408-8601 this custom-built two-story home offers four bedrooms and 3.5 bathrooms across 2,600 finished square feet, set on 1.78 acres.a standout feature is the 2,200-square-foot pole barn, well-equipped with two furnaces, a pellet stove, half bath, 14-foot ceilings, and multiple overhead doors (two 12-foot, one 10-foot, and three 7-foot). Additional features include two attic storage areas, a 9,000-pound car lift, and an air compressor (negotiable) --making it an excellent space for projects, storage, or hobbies.the home's main level includes a mudroom off the garage, which flows into the kitchen, dinette, living room, formal dining area, and a half bath. The living room features a gas fireplace, offering a warm and inviting focal point for gathering during cooler months.upstairs, the spacious primary suite includes a walk-in closet and private bath with a jetted tub and separate shower. Two additional bedrooms and another full bath complete the upper level.the walk-out lower level offers a large recreation room, a fourth bedroom, full bath, and laundry areaideal for guests, or a home office. outdoors, enjoy a pool with a robotic vacuum and a large low-maintenance composite deck, perfect for entertaining or relaxing. Located just minutes from the beaches of lake michigan, downtown saugatuck and douglas, cranes orchard and restaurant, and several fennville wineries. whether you're looking for a full-time residence with the perfect spot for car enthusiasts, hobbiests, contractors, rv/boat storage, woodworking, home business you name it. Or a weekend retreat with convenient access from chicago, this property offers a thoughtful balance of space, comfort, and location. matterport walkthrough available on homes.com https://www.homes.com/property/6814-dale-ct-fennville-mi/gmk0swp0bs0vr/?tab=1&dk=8cxv6h9fx3c46 contact us today to schedule a private tour.More Information
- MLS Number: 71025053752
- Price: $645,000.00
- Listing Start Date: 10/17/2025
- Current MLS Status: Active
- Status Date: 10/17/2025
- Original Listing Price:
- Year Built: 2000
- Square Footage: 2600
- Price per SqFt: $248.08
- Bedrooms: 4
- Full Bathrooms: 3
- Half Bathrooms: 1
- Total Tax: $5,304
- Has Basement: Yes
- Down Payment Assistance: Call us for resources
Public Record Information
- Estimated Value: $585,373
- Square Footage: 1806
- Lot Area: 1.78 acres (77,493 sqft)
- Price per SqFt: $324.00
- Year Built: 1999
- Bedrooms: 3
- Full Bathrooms: 4
- Half Bathrooms: 1
- Taxes (from public record): --
- Approx. Loan Amount: $286,000
- Zoning: A-2
- Floor Types:
- Amenities:
- A/C Types: Yes
- Heating Types: Forced Air Unit
- Exterior Wall Types: Wood Siding
- Parking Size: 2
- Legal Description: W 125' LOT 1 RAVINE ACRES PLAT SEC 32 T3N R16W (96)
-
Current APN
(Assessor's Parcel Number): 20-300-001-00 (2030000100) - Previous APN: 20-300-001-00 (20-300-001-00)
- General Land Use: Residential
- County Land Use: Residential - Improved (401)
- Owner Occupied: Yes
- Owner City: Fennville, MI
- No. of Buildings: 2
Valuation
Exact Location
Transaction History
| Sale Date | Sale Price | Arm's-Length |
|---|---|---|
| 04/20/2017 | $324,000 | Yes |
Schools Nearby
Homes recently sold within a mile of 6814 Dale, Fennville, MI. 49408
Homes for sale within a mile of 6814 Dale, Fennville, MI. 49408
Find homes for sale around 6814 Dale, Fennville, MI. 49408

IDX provided courtesy of Realcomp II Ltd. via Snabby.com and Realcomp II Ltd. , ©2025 Realcomp II Ltd. Shareholders
The data relating to real estate on this web site comes in part from the Internet Data Exchange (IDX) Program of Realcomp Ltd.
Real estate listings held by firms other than Snabby Real Estate are marked with the Realcomp Internet Data Exchange logo or thumbnail logo
and detailed information about them includes the Listing Broker's Firm Name. The information being provided is for consumers personal,
non-commercial use and may not be used for any purpose other than to identify prospective properties consumers may be interested in purchasing.
Listing Provided by Coldwell Banker Woodland Schmidt
Office Contact Info: (616) 393-9000

































































