711 Smith St Algonac, MI 48001
Explore our fast and easy mortgage options to maximize your home’s value. Younited Mortgage NMLS #1880125
Overview
W 1/2 LOTS 5 & 6 BLK 59 & E 1/2 OF VAC ALLEY ADJ MAP OF THE VILLAGE OF ALGONAC ACCORDING TO THE PLAT RECORDED IN LIBER F OF
This building may also appear as:
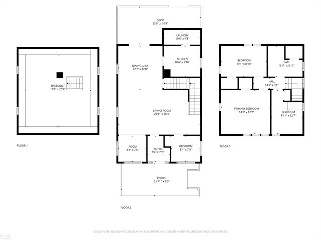
711 Smith St711 Smith St Algonac, MI. 48001-1442 welcome to 711 smith - a beautifully updated home featuring four spacious bedrooms and one full bath. Inside, you'll find fresh paint throughout and brand-new carpeting, giving the home a bright and inviting feel. The property sits on a picturesque lot with mature trees that offer plenty of shade and privacy. A large garage provides ample storage and workspace. Conveniently located close to the st. Clair river, local schools, and shopping, this home combines comfort, convenience, and charm - perfect for families or anyone looking to enjoy all that the area has to offer.More Information
- MLS Number: 58050190848
- Price: $210,000.00
- Listing Start Date: 11/26/2025
- Current MLS Status: Active
- Status Date: 11/26/2025
- Original Listing Price:
- Year Built: 1940
- Square Footage: 1809
- Price per SqFt: $116.09
- Bedrooms: 4
- Full Bathrooms: 1
- Total Tax: $1,487
- Has Basement: Yes
- Down Payment Assistance: Call us for resources
Public Record Information
- Estimated Value: $204,293
- Square Footage: 1242
- Lot Area: 0.19 acres (8,276 sqft)
- Price per SqFt: $164.00
- Year Built: 1994
- Bedrooms: 3
- Full Bathrooms: 1
- Taxes (from public record): $1,317
- Approx. Loan Amount: $233,100
- Zoning: R-3
- Floor Types:
- Amenities:
- Swm Pool Type: NO POOL
- Heating Types: Hot Water
- Parking Types: Type Not Specified
- Parking Size: 2
- Pool: No Pool
- Legal Description: W 1/2 LOTS 5 & 6 BLK 59 & E 1/2 OF VAC ALLEY ADJ MAP OF THE VILLAGE OF ALGONAC ACCORDING TO THE PLAT RECORDED IN LIBER F OF
-
Current APN
(Assessor's Parcel Number): 74-01-105-0143-000 (74011050143000) - Tax ID#: 74011050143000
- General Land Use: Residential
- County Land Use: Single Family Residence (401)
- Owner Occupied: YES
- Owner City: Algonac, MI
Valuation
Exact Location
Transaction History
| Sale Date | Sale Price | Arm's-Length |
|---|---|---|
| 01/01/0001 | Yes | |
| 01/01/0001 | Yes | |
| 01/01/0001 | Yes | |
| 01/01/0001 | Yes |
Schools Nearby
Homes recently sold within a mile of 711 Smith, Algonac, MI. 48001
Homes for sale within a mile of 711 Smith, Algonac, MI. 48001
Find homes for sale around 711 Smith, Algonac, MI. 48001

IDX provided courtesy of Realcomp II Ltd. via Snabby.com and Realcomp II Ltd. , ©2025 Realcomp II Ltd. Shareholders
The data relating to real estate on this web site comes in part from the Internet Data Exchange (IDX) Program of Realcomp Ltd.
Real estate listings held by firms other than Snabby Real Estate are marked with the Realcomp Internet Data Exchange logo or thumbnail logo
and detailed information about them includes the Listing Broker's Firm Name. The information being provided is for consumers personal,
non-commercial use and may not be used for any purpose other than to identify prospective properties consumers may be interested in purchasing.
Listing Provided by RE/MAX Advisors
Office Contact Info: (586) 725-1900


























