784 Barrington Grosse Pointe, MI 48230
Explore our fast and easy mortgage options to maximize your home’s value. Younited Mortgage NMLS #1880125
Overview
PKYY312 LOT 312 WINDMILL PTE SUB PC 126,127,379,570,696 L37 P5, 6 WCR
This building may also appear as:
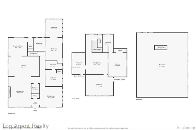
784 Barrington Rd784 Barrington Rd Grosse Pointe Park, MI. 48230-1725 welcome to 784 barrington, the most stunning, the most unique, and the most modern home in the neighborhood! this 4 bedroom, 4.5 bathroom gem combines classic charm with modern luxury. the kitchen, which is an open concept to the living room, has been remodeled with white shaker cabinets, a forest green island, quartz countertops, new ceramic tile backsplash, and all-new stainless steel appliances (2025). In front of the home is the formal dining room, which has a beautiful forest green accent wall and a luxurious chandelier (2025). The bathrooms have been completely gutted and renovated with new ceramic tile, new vanities, and new toilets (2025). Enjoy the convenience of having a full bathroom for each bedroom in the home. Other upgrades include new vinyl plank flooring (2025), the award winning sherwin williams alabaster paint throughout (2025), new roof on home and garage (2025), new gutters (2025), new light fixtures (2025), updated electrical (2025), updated plumbing (2025), new exterior doors (2025), new landscaping (2025),newly re-done porch(2025), new garage door(2025) and so much more! The basement has newly painted black ceilings, led lights and drywall thats ready for you to finish. Two a/c units with two new furnaces to be installed prior to closing. Schedule your showing today!!!More Information
- MLS Number: 20251053943
- Price: $749,900.00
- Listing Start Date: 11/19/2025
- Current MLS Status: Active
- Status Date: 11/19/2025
- Year Built: 1923
- Square Footage: 3802
- Price per SqFt: $197.24
- Bedrooms: 4
- Full Bathrooms: 4
- Half Bathrooms: 1
- Total Tax: $6,839
- Year Remodeled: 2025
- Has Basement: Yes
- Down Payment Assistance: Call us for resources
Public Record Information
- Estimated Value: $534,481
- Square Footage: 2494
- Lot Area: 0.23 acres (10,019 sqft)
- Price per SqFt: $214.00
- Year Built: 1923
- Bedrooms: n/a
- Full Bathrooms: 2
- Taxes (from public record): $8,412
- Approx. Loan Amount: $0
- Build Quality: B
- Floor Types:
- Amenities:
- Heating Types: Hot Water
- Architecture Type: Ranch
- Parking Size: 2
- Legal Description: PKYY312 LOT 312 WINDMILL PTE SUB PC 126,127,379,570,696 L37 P5, 6 WCR
-
Current APN
(Assessor's Parcel Number): 39 009 02 0312 000 (39009020312000) - General Land Use: Residential
- County Land Use: Residential - Improved (401)
- Owner Occupied: Yes
- Owner City: Grosse Pointe Park, MI
- No. of Buildings: 1
Valuation
Exact Location
Schools Nearby
Homes recently sold within a mile of 784 Barrington, Grosse Pointe, MI. 48230
Homes for sale within a mile of 784 Barrington, Grosse Pointe, MI. 48230
Find homes for sale around 784 Barrington, Grosse Pointe, MI. 48230

IDX provided courtesy of Realcomp II Ltd. via Snabby.com and Realcomp II Ltd. , ©2025 Realcomp II Ltd. Shareholders
The data relating to real estate on this web site comes in part from the Internet Data Exchange (IDX) Program of Realcomp Ltd.
Real estate listings held by firms other than Snabby Real Estate are marked with the Realcomp Internet Data Exchange logo or thumbnail logo
and detailed information about them includes the Listing Broker's Firm Name. The information being provided is for consumers personal,
non-commercial use and may not be used for any purpose other than to identify prospective properties consumers may be interested in purchasing.
Listing Provided by Top Agent Realty
Office Contact Info: (248) 277-4226






















































