816 London Lincoln Park, MI 48146
Explore our fast and easy mortgage options to maximize your home’s value. Younited Mortgage NMLS #1880125
Overview
KA274B 275 WLY 5 FT OF LOT 274 ALSO LOT 275 ALSO SLY 1/2 ADJ VAC ALLEY PARKHURST NO. 1 SUB PC 48 L63 P74 WCR
This building may also appear as:
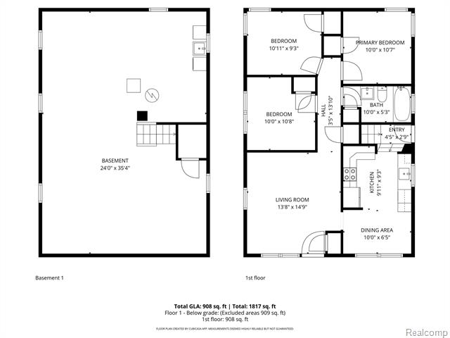
816 London Ave816 London Ave Lincoln Park, MI. 48146-3119 move-in ready & Fully updated! This beautiful 3-bedroom ranch with a park view and a long list of new updates: Roof, windows, kitchen, stainless appliances, bathroom, flooring, and paint. Nothing left to do—just move in and enjoy. Schedule your showing today!More Information
- MLS Number: 20251059200
- Price: $219,900.00
- Listing Start Date: 12/09/2025
- Current MLS Status: Active
- Status Date: 12/09/2025
- Year Built: 1955
- Square Footage: 944
- Price per SqFt: $232.94
- Bedrooms: 3
- Full Bathrooms: 1
- Half Bathrooms: 0
- Total Tax: $2,288
- Has Basement: Yes
- Down Payment Assistance: Call us for resources
Public Record Information
- Estimated Value: $132,213
- Square Footage: 944
- Lot Area: 0.10 acres (4,356 sqft)
- Price per SqFt: $140.00
- Year Built: 1955
- Bedrooms: n/a
- Full Bathrooms: 1
- Taxes (from public record): $1,942
- Approx. Loan Amount: $0
- Build Quality: C+
- Floor Types:
- Amenities:
- A/C Types: Yes
- Heating Types: Forced Air Unit
- Architecture Type: Ranch
- Parking Size: 2
- Legal Description: KA274B 275 WLY 5 FT OF LOT 274 ALSO LOT 275 ALSO SLY 1/2 ADJ VAC ALLEY PARKHURST NO. 1 SUB PC 48 L63 P74 WCR
-
Current APN
(Assessor's Parcel Number): 45 012 06 0274 002 (45012060274002) - General Land Use: Residential
- County Land Use: Residential - Improved (401)
- Owner Occupied: Yes
- Owner City: Lincoln Park, MI
- No. of Buildings: 1
Valuation
Exact Location
Transaction History
| Sale Date | Sale Price | Arm's-Length |
|---|---|---|
| 06/09/2021 | Yes |
Schools Nearby
Homes recently sold within a mile of 816 London, Lincoln Park, MI. 48146
Homes for sale within a mile of 816 London, Lincoln Park, MI. 48146
Find homes for sale around 816 London, Lincoln Park, MI. 48146

IDX provided courtesy of Realcomp II Ltd. via Snabby.com and Realcomp II Ltd. , ©2025 Realcomp II Ltd. Shareholders
The data relating to real estate on this web site comes in part from the Internet Data Exchange (IDX) Program of Realcomp Ltd.
Real estate listings held by firms other than Snabby Real Estate are marked with the Realcomp Internet Data Exchange logo or thumbnail logo
and detailed information about them includes the Listing Broker's Firm Name. The information being provided is for consumers personal,
non-commercial use and may not be used for any purpose other than to identify prospective properties consumers may be interested in purchasing.
Listing Provided by Reality Real Estate Professionals
Office Contact Info: (734) 362-9511



















