8815 Marlowe Plymouth, MI 48170
Explore our fast and easy mortgage options to maximize your home’s value. Younited Mortgage NMLS #1880125
Overview
34C406B TO 34C413A GREEN MEADOWS SUB T1S R8E L61 P94 WCR S 5FT OF LOT 406 ALSO LOTS 407 TO 412 INCL ALSO THE E 1/2 OF LOT 413
This building may also appear as:
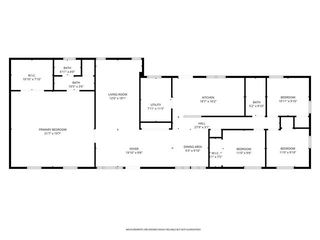
8815 Marlowe Ave8815 Marlowe Ave Plymouth, MI. 48170-4033 welcome home to this charming, updated ranch in plymouth township! Step inside to find a bright, freshly painted interior featuring a spacious living room and a modern kitchen with crisp white cabinetry and stainless steel appliances. The dining area, perfect for entertaining, flows seamlessly into the main living spaces with new carpet. This home offers true move-in ready comfort with tastefully updated bathrooms and generous bedroom sizes.car enthusiasts and hobbyists will fall in love with the large, detached mechanic's garage- a rare find! Outside, enjoy the freedom of no hoa and an expansive driveway with incredible parking capacity for multiple vehicles, rvs, or trailers. The deep backyard provides plenty of space for outdoor activities and relaxation.located just minutes from downtown plymouth's shops and dining, yet tucked away for privacy.More Information
- MLS Number: 81025061371
- Price: $425,000.00
- Listing Start Date: 12/09/2025
- Current MLS Status: Active
- Status Date: 12/09/2025
- Year Built: 1949
- Square Footage: 2082
- Price per SqFt: $204.13
- Bedrooms: 4
- Full Bathrooms: 2
- Half Bathrooms: 0
- Total Tax: $3,814
- Down Payment Assistance: Call us for resources
Public Record Information
- Estimated Value: $394,500
- Square Footage: 1398
- Lot Area: 0.37 acres (16,200 sqft)
- Price per SqFt: $282.00
- Year Built: 1949
- Bedrooms: n/a
- Full Bathrooms: 1
- Taxes (from public record): $5,074
- Approx. Loan Amount: $462,148
- Zoning: R-1
- Build Quality: C+
- Floor Types:
- Amenities:
- A/C Types: Yes
- Heating Types: Forced Air Unit
- Architecture Type: Ranch
- Parking Size: 5
- Legal Description: 34C406B TO 34C413A GREEN MEADOWS SUB T1S R8E L61 P94 WCR S 5FT OF LOT 406 ALSO LOTS 407 TO 412 INCL ALSO THE E 1/2 OF LOT 413
-
Current APN
(Assessor's Parcel Number): R-78-059-03-0406-002 (R78059030406002) - General Land Use: Residential
- County Land Use: Residential - Improved (401)
- Owner Occupied: Yes
- Owner City: Plymouth, MI
- No. of Buildings: 1
Valuation
Exact Location
Transaction History
| Sale Date | Sale Price | Arm's-Length |
|---|---|---|
| 04/05/2022 | $300,000 | Yes |
| 04/13/2016 | $128,000 | Yes |
| 02/12/2013 | $112,500 | Yes |
| 10/05/2012 | Yes | |
| 02/13/2009 | $65,000 | Yes |
| 02/27/2008 | $153,850 | Yes |
| 11/07/2005 | Yes | |
| 09/13/2005 | Yes | |
| 03/25/2005 | Yes |
Schools Nearby
Homes recently sold within a mile of 8815 Marlowe, Plymouth, MI. 48170
Homes for sale within a mile of 8815 Marlowe, Plymouth, MI. 48170
Find homes for sale around 8815 Marlowe, Plymouth, MI. 48170

IDX provided courtesy of Realcomp II Ltd. via Snabby.com and Realcomp II Ltd. , ©2025 Realcomp II Ltd. Shareholders
The data relating to real estate on this web site comes in part from the Internet Data Exchange (IDX) Program of Realcomp Ltd.
Real estate listings held by firms other than Snabby Real Estate are marked with the Realcomp Internet Data Exchange logo or thumbnail logo
and detailed information about them includes the Listing Broker's Firm Name. The information being provided is for consumers personal,
non-commercial use and may not be used for any purpose other than to identify prospective properties consumers may be interested in purchasing.
Listing Provided by Live North Real Estate LLC
Office Contact Info: (248) 880-8931












































