9635 N Appoline Street E Detroit, MI 48227
Explore our fast and easy mortgage options to maximize your home’s value. Younited Mortgage NMLS #1880125
Overview
W APPOLINE 4 SCHOOLVIEW RE-SUB L63 P66 PLATS, W C R 22/676 33 X 104
This building may also appear as:
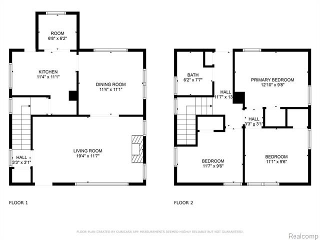
9635 Appoline St9635 Appoline St Detroit, MI. 48227-3713 welcome to 9635 appoline, detroit, mi 48227! this classic 3-bedroom, 1-bath brick bungalow offers functional living space and long-term value in a stable detroit neighborhood. Whether you're looking for your next home or a turnkey rental, this property delivers inside, you’ll find a bright, spacious layout with beautiful natural light and generous room sizes throughout. The home features a comfortable living area, dining space, and a clean, functional kitchen with great flow, perfect for both daily living and entertaining. The bedrooms offer quiet comfort, and the full bathroom is well-maintained. additional highlights include a 1-car detached garage, full basement with storage and laundry potential, and a fenced in backyard. whether you’re a first-time buyer, investor, or someone looking for a well-built home with upside, 9635 appoline delivers value, space, and opportunity in one solid package. No matter what your direction is, this home makes financial sense, with average rents in the area around $1,350/month, the potential for cash flow is strong from day one. Located near major freeways, schools, and shopping, this is a smart move in the heart of the city.More Information
- MLS Number: 20251020008
- Price: $80,000.00
- Listing Start Date: 12/08/2025
- Current MLS Status: Active
- Status Date: 12/08/2025
- Original Listing Price:
- Year Built: 1928
- Square Footage: 1193
- Price per SqFt: $67.06
- Bedrooms: 3
- Full Bathrooms: 1
- Half Bathrooms: 0
- Total Tax: $1,645
- Has Basement: Yes
- Down Payment Assistance: Call us for resources
Public Record Information
- Estimated Value: $37,448
- Square Footage: 1193
- Lot Area: 0.08 acres (3,485 sqft)
- Price per SqFt: $31.00
- Year Built: 1928
- Bedrooms: n/a
- Full Bathrooms: 2
- Half Bathrooms: 1
- Taxes (from public record): $504
- Approx. Loan Amount: $0
- Zoning: R1
- Build Quality: C+
- Floor Types:
- Amenities:
- Heating Types: Forced Air Unit
- Exterior Wall Types: Brick
- Architecture Type: Other
- Parking Size: 1
- Legal Description: W APPOLINE 4 SCHOOLVIEW RE-SUB L63 P66 PLATS, W C R 22/676 33 X 104
-
Current APN
(Assessor's Parcel Number): 22021879. (22021879) - Previous APN: 22021879. (22021879.)
- General Land Use: Residential
- County Land Use: Residential - Improved (401)
- Owner Occupied: Yes
- Owner City: Detroit, MI
- No. of Buildings: 1
Valuation
Exact Location
Transaction History
| Sale Date | Sale Price | Arm's-Length |
|---|---|---|
| 09/15/2023 | $37,500 | No |
Schools Nearby
Homes recently sold within a mile of 9635 Appoline, Detroit, MI. 48227
Homes for sale within a mile of 9635 Appoline, Detroit, MI. 48227
Find homes for sale around 9635 Appoline, Detroit, MI. 48227

IDX provided courtesy of Realcomp II Ltd. via Snabby.com and Realcomp II Ltd. , ©2025 Realcomp II Ltd. Shareholders
The data relating to real estate on this web site comes in part from the Internet Data Exchange (IDX) Program of Realcomp Ltd.
Real estate listings held by firms other than Snabby Real Estate are marked with the Realcomp Internet Data Exchange logo or thumbnail logo
and detailed information about them includes the Listing Broker's Firm Name. The information being provided is for consumers personal,
non-commercial use and may not be used for any purpose other than to identify prospective properties consumers may be interested in purchasing.
Listing Provided by Keller Williams Legacy
Office Contact Info: (313) 752-0000





























